Modernes Ärzte-, Geschäfts- und Wohnhaus im Stadtteil Neulindenau.
Ausstattung
Das großzügige Wohn-/ und Geschäftshaus LINDENAU FORUM hat sich durch das darin befindliche Ärztehaus, das umfangreiche Angebot zum betreuten Wohnen und durch langjährige und namhafte Dienstleister und Einzelhändler im Erdgeschoß als Stadtteilmagnet profiliert.Aktuell wurde das Objekt durch einen großen rechtsseitigen Anbau/Neubau erweitert, welcher das Angebot und die Attraktivität des Standortes noch weiter erhöhen.
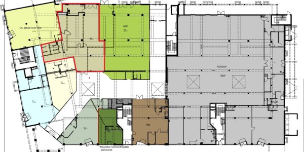
Die hier angebotene Gewerbefläche (im Grundriss rot markiert) ist barrierefrei erreichbar und befindet sich in der Passage, welche im Zuge des Um- und Neubaus auch eine Modernisierung erfahren hat.
Wir suchen eine Therapiepraxis oder ein Therapiezentrum (Psycho o-ä.), welche(s) unser akttraktives und gefragtes Ärztehaus ergänzen und vervollständigen würde.
Gern planen wir die Fläche nach Ihren Vorstellungen bzw. passen diese entsprechend an.
Es gibt hier auch noch geringe Erweiterungsmöglichkeiten durch eine kleinere und angrenzenden Gewerbefläche.
Wir freuen uns auf Sie.
Rufen Sie uns doch einfach an und vereinbaren einen Ortstermin !
Lage
Das Objekt befindet sich zentral im Stadtteil Neulindenau, direkt an der Ausfallstraße Lützner Straße. Der Standort verfügt in unmittelbarer Nähe über sämtliche Einrichtungen des täglichen Lebens wie Cafes, Einkaufspassagen, Banken etc. und profitiert durch seine gute Verkehrsanbindung.Aktuell hat der Standort durch die Umgestaltung des Lindenauer-Hafens weiter an Attraktivität gewonnen.
Mit dem PKW und dem öffentlichen Nahverkehr sind Sie schnell in der Leipziger Innenstadt sowie stadtauswärts über die Autobahnanschlussstellen A9 ideal angebunden.
Profitieren Sie von einer repräsentativen und zentralen Geschäftsadresse für Ihr Unternehmen.
Merkmale
- DV-Verkabelung
- provisionsfrei
- Stellplatz / Garage
Adresse
04179 Leipzig / Neulindenau
Auf Google Maps anzeigen






























