Interessante, kleine Singlewohnung mit günstiger Raumaufteilung, Tageslichtbad mit Dusche und sehr guter Verkehrsanbindung.
Ausstattung
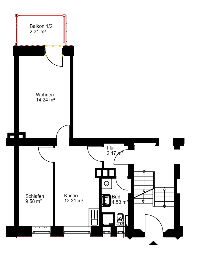
Diese schöne 2-Raum-Wohnung im Hochparterre verfügt über einen ansprechenden Grundriss.Das helle Tageslichtbad mit Dusche und der moderne Bodenbelag in den Wohnräumen schaffen eine angenehme Wohnatmosphäre.
Der neue Balkon mit Hofausrichtung und grünem Ausblick lädt zum Verweilen ein.
Lage
Im Norden von Leipzig, zwischen Gohlis und Mockau, liegt der Stadtteil Eutritzsch, ein sehr abwechslungsreiches Viertel.Der Arthur-Bretschneider-Park, im Westen von Eutritzsch gelegen, lädt ein zum Spazierengehen und Entspannen.
Einkaufsmöglichkeiten sind z.T. fußläufig erreichbar.
Die Anbindung an das Stadtzentrum und die umliegenden Stadtbezirken mit den öffenetlichen Verkehrsmitteln ist hervorragend.
Merkmale
- Abstellraum
- Altbau
- Balkon
- Gartennutzung
- Keller
- provisionsfrei
- saniert
Adresse
Delitzscher Straße 142, 04129 Leipzig / Eutritzsch
Auf Google Maps anzeigen



















