Die 3-Zimmer-Wohnung befindet sich in einem gepflegten und sehr ruhigen Mehrfamilienhaus in Merseburg. Dieses Objekt ist für jede Altersklasse geeignet. Außenstellplätze und Garagen runden das Angebot ab.
Ausstattung
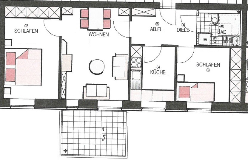
Die schöne 3-Zimmer-Wohnung befindet sich im 1. Obergeschoss des Hauses und überzeugt durch einen durchdachten Grundriss. In den Wohnräumen ist ein pflegeleichter Laminatboden verlegt, der für eine angenehme Wohnatmosphäre sorgt. Die Wohnung verfügt über eine separate, kleine Küche, das Badezimmer ist mit einer Badewanne ausgestattet. Ein Stellplatz oder alternativ eine Garage kann je nach Verfügbarkeit angemietet werden. Ein Fahrstuhl im Haus sorgt für einen komfortablen Zugang zur Wohnung. Darüber hinaus steht ein eigener Kellerraum zur Verfügung, der zusätzlichen Stauraum bietet.Lage
Die Immobilie befindet sich in der Fritz-Haber-Straße in Merseburg, einer ruhigen und gewachsenen Wohnlage mit überwiegend wohnwirtschaftlicher Nutzung. Das Umfeld ist geprägt von gepflegten Mehrfamilien- und Einfamilienhäusern sowie begrünten Nebenstraßen, was ein angenehmes Wohnklima schafft.Einkaufsmöglichkeiten für den täglichen Bedarf, Schulen, Kindertagesstätten, Ärzte und Apotheken sind in wenigen Minuten erreichbar. Die Innenstadt von Merseburg mit ihrem historischen Stadtkern, Cafés und kulturellen Angeboten liegt nur eine kurze Fahrt entfernt.
Die Anbindung an den öffentlichen Nahverkehr ist gut: Busverbindungen befinden sich in fußläufiger Nähe. Über die nahegelegenen Verkehrsachsen besteht eine schnelle Verbindung nach Halle (Saale) sowie zur Metropolregion Leipzig. Auch die Autobahnen A9 und A38 sind zügig erreichbar und bieten eine gute regionale und überregionale Anbindung.
Insgesamt überzeugt die Lage durch ihre Kombination aus ruhigem Wohnen, guter Infrastruktur und verkehrsgünstiger Erreichbarkeit.
Merkmale
- Abstellraum
- Aufzug
- Balkon
- gepflegt
- Haustiere erlaubt
- Keller
- Neubau
- provisionsfrei
- Stellplatz / Garage
Adresse
Fritz-Haber-Straße 3, 06217 Merseburg / Merseburg-Süd
Auf Google Maps anzeigen























