* Die mit Abschluss des notariellen Kaufvertrages zahlbare Käuferprovision beträgt 3,57% brutto vom beurkundeten Kaufpreis.
Bei der angebotenen Immobilie handelt es sich um eine Eigentumswohnung im Erdgeschoss eines 10-Parteienhauses.
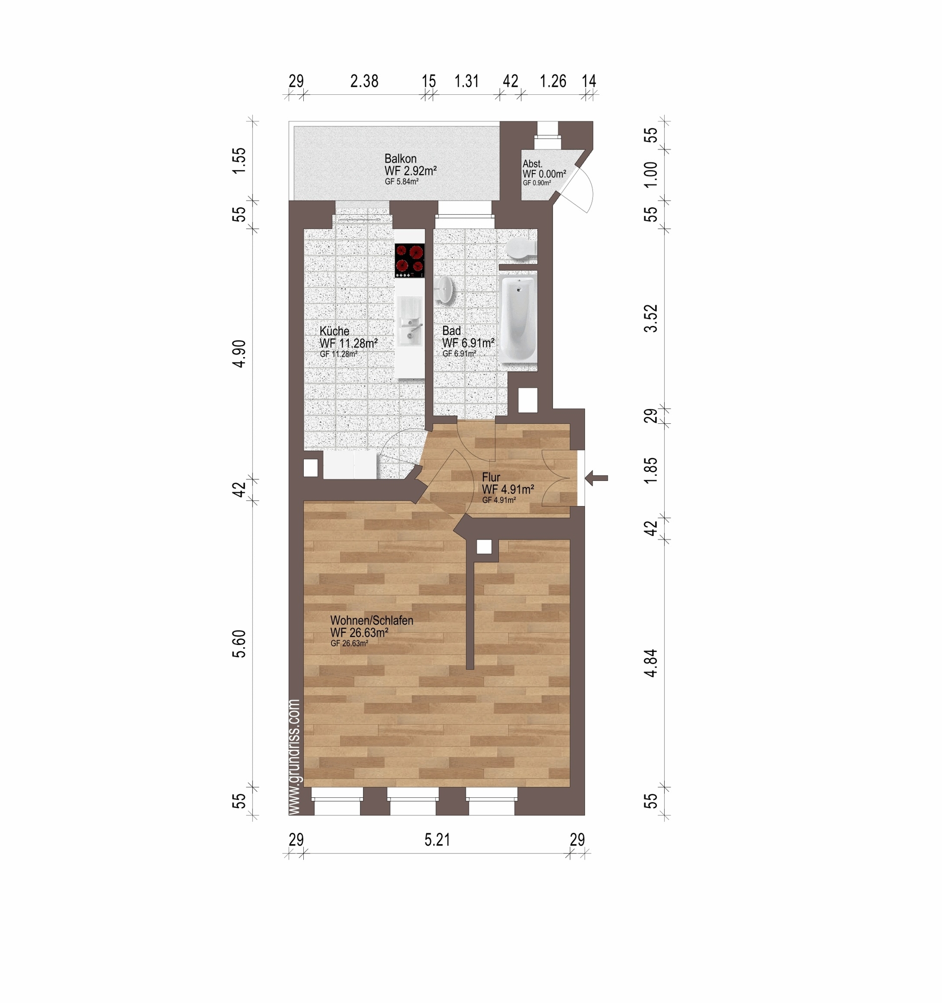
Konzipiert wurde die Wohnung als 2-Zimmer-Einheit. Im späteren Verlauf erfolgte die Veränderung, so dass heute der Wohn- und Schlafbereich durch eine halbseitig geöffnete Wand miteinander verbunden sind.
Die mit Parkett (Eiche) und Fliesen ausgestattete Wohnung wirkt mit ihren ca. 2,70 m (abgehangene) Deckenhöhe angenehm luftig und gemütlich. Die ursprünglich knapp 50 m2 sind optimal aufgeteilt (Erweiterung durch Balkonanbau).
Vom Flur aus erreichen Sie alle Räume der Wohnung. Herzstück und wahrlich in Sonnenschein getaucht ist der große Wohnbereich. Auch die nachträgliche halbseitige Öffnung der Trennwand zum Schlafbereich ändert nichts daran, dass Ihnen dieser Raum vielseitige Stellmöglichkeiten für Möbel bietet. Die halboffene Gestaltung sorgt für zusätzlich Licht.
Der Schlafbereich selbst ist geschickt gestaltet. Ein Doppelbett findet seinen Platz versteckt hinter der Trennwand, so dass die optische Trennung der „Tag“-“Nacht“-Bereiche sehr gut gelingt.
Die Küche bietet mit über 11 m2 eine tolle Größe. Hier müssen Sie sich nicht begrenzen und auch nicht auf einen Essplatz verzichten.
Wunderbar ist auch der direkte Zugang zum großen Balkon. Dieser wurde nachträglich angebaut und ist mit fast 6 m2 Fläche wirklich großzügig und definitiv keine Selbstverständlichkeit bei kleinen Wohnungen in Leipzig.
Auch das Bad lässt keine Wünsche offen. Idealerweise handelt es sich um ein Tageslichtbad, welches bis zu einer Höhe von ca. 2,00 m gefliest ist. Eine Abtrennung sorgt dafür, dass Sie bequem in der großen Wanne duschen können.
Die Eigentumswohnung eignet sich ideal zur Eigennutzung für einen 1-Personen-Haushalt – egal ob Jung oder Alt. Die perfekte Infrastruktur mit dem ÖPNV vor der Haustür macht das Vorhandensein eines PKW abdingbar, was insbesondere für Studenten und auch ältere Bewohner optimal ist.
Zur Wohnung gehört eine abschließbare Abstellkammer außerhalb der Wohnung sowie ein großzügiges Kellerabteil.
Ausstattung
° Baujahr um 1900° Sanierung Ende der 1990er Jahre
° insgesamt 10 WE‘s
° WE Nr. 2 im EG links
° 52,65 m2 inkl. Balkon (50%)
° Deckenhöhe ca. 2,80 m (abgehangen)
° Wände: Raufaser, Anstrich
° Boden: Parkett, Fliesen
° Tageslichtbad mit Wanne und WM-Anschluss
° Abstellkammer
° Kellerabteil
° Verkauf inkl. Mobiliar
° 927/10.000tel MEA
° 230,00 € Hausgeld mtl., davon 46,35 € IHR mtl.
Lage
Der beliebte Stadtteil Lindenau liegt im Westen von Leipzig, nur knapp 3 km vom Stadtzentrum entfernt. Die Innenstadt ist mit dem Fahrrad oder der Straßenbahn in etwa 10–15 Minuten erreichbar. Durch die Nähe zur City und die direkte Anbindung an das öffentliche Verkehrsnetz gehört Lindenau zu den gefragten Wohnlagen im Leipziger Westen. Diese positive Entwicklung ist insbesondere in den vergangenen Jahren deutlich sichtbar. Zahlreiche Immobilien wurden aufwendig saniert. Ebenso entstand eine Vielzahl an Neubauten.Das Durchschnittsalter liegt bei rd. 36 Jahren, was deutlich zeigt, dass Lindenau bei jungen Menschen sehr beliebt ist. Das liegt zum einen an der sehr guten Infrastruktur und Nahversorgung.
Der Stadtteil ist sehr gut an den ÖPNV angeschlossen, u. a. durch mehrere Straßenbahnlinien (z. B. Linie 7) und Busverbindungen, die kurze Wege in alle Richtungen der Stadt bieten. Zudem befinden sich in unmittelbarer Nähe zahlreiche Einkaufsmöglichkeiten und Nahversorger, wie z.B. REWE, ALDI Nord, PENNY und Kaufland Leipzig‑Altlindenau. Die Leutzsch Arkaden beherbergt weitere Shops und Dienstleistungen sowie kleinere lokale Geschäfte für eine lebendige Nachbarschaft.
Lindenau verfügt über ein breites schulisches Angebot von Grund- und Oberschulen bis hin zu Gymnasien direkt im Stadtteil. Außerdem sind mehrere Kindertagesstätten im Umkreis ansässig.
Direkt gegenüber befindet sich das renommierte Diakonissenkrankenhaus mit Ärztehaus. Nahe gelegen ist auch das Soziales Zentrum Clara Zetkin.
Trotz der zentralen Lage bietet Lindenau einen großen Freizeitwert: Direkt angrenzend erstreckt sich der Leipziger Auenwald – ein weitläufiges Naherholungsgebiet mit weitläufigen Spazier- und Radwegen.
Merkmale
- Abstellraum
- Balkon
- Einbauküche
- gepflegt
Adresse
04177 Leipzig
Auf Google Maps anzeigen















































