Visualisierung

OSTFORUM – Ihr moderener Bürostandort / Einzelhandelsflächen im EG und UG

04103 Leipzig / Zentrum-Ost
  • Visualisierung
  • Haus B - 1. OG ca. 234 m²
  • Haus B - 1. OG ca. 166 m²
  • Haus B - 2-4. OG je OG ca. 571 m²
  • Haus B - 5. OG ca. 232 m²
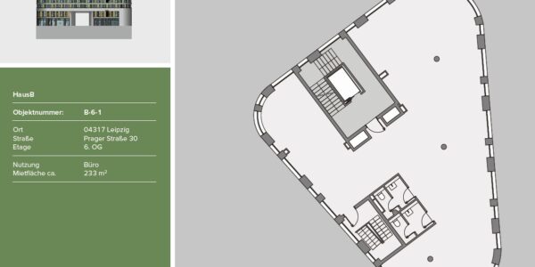
  • Haus B - 6. OG ca. 233 m²
  • Innenansicht
  • Ansicht
  • Baukonzept
  • Ostforum_Strassenansicht
  • Ostforum_Luftbild

In unmittelbarer Nähe zur Leipziger Innenstadt und direkt am Ostplatz entsteht ein beeindruckender dreiteiliger Gebäudekomplex mit futuristischem Design und hohem Wiedererkennungswert.
Das Herzstück des Ensembles soll durch attraktive kleine Geschäfte und gastronomische Angebote belebt werden.
Die Gebäude A und B sind ausschließlich für gewerbliche Nutzung vorgesehen und bieten auf 10 Etagen moderne, lichtdurchflutete Gewerbeflächen mit einem hohen Wohlfühlfaktor und zeitgemäßer Ausstattung.

Im ersten Untergeschoss wird ein bekannter Lebensmitteleinzelhändler ansässig sein, was kurze Wege für den täglichen Bedarf garantiert.

Aktuell stehen im 1. bis 10. Obergeschoss Gewerbeflächen (Büros) zur Verfügung. Im Erdgeschoss gibt es zusätzlich ca. 1.600 m² Ladenflächen zu mieten.

Ausstattung

Ausstattungsmerkmale im Überblick:

• Flexible und moderne Gewerbeflächen für Büro, Gastronomie und Einzelhandel ab 92 m²
• Individuelle Raumgestaltung in den Büroetagen möglich
• Effiziente mechanische Be- und Entlüftungssysteme
• Kühlung durch umweltfreundliche Photovoltaikanlage
• Außenliegender Sonnenschutz mit elektrischem Antrieb
• Glasfaseranschluss in allen Etagen verfügbar
• Begrünte Dachterrassen als entspannende Loungebereiche für den Mieter der Einheit nutzbar
• Treppenhäuser mit Aufzügen und hochwertigen Bodenbelägen ausgestattet
• Videogegensprechanlage und elektronischer Zugang für erhöhte Sicherheit
• Separate Bereiche für die Warenanlieferung vorgesehen
• Angestrebte DGNB-Zertifizierung in Gold
• Zweigeschossige Tiefgarage mit insgesamt 183 Pkw-Stellplätzen, zusätzlich 80 Stellplätze in unmittelbarer Nähe verfügbar
• Ladestationen für Elektrofahrzeuge in der Tiefgarage vorhanden
• Sichere Fahrradstellplätze in der Tiefgarage eingerichtet

Der Mietpreis richtet sich nach dem gewünschten Ausstattungs- und Ausbaustandard, der Lage im Objekt und der verhandelten Mietvertragslaufzeit.

Die Mindestmietzeit beträgt bei den Gewerbeflächen 5 Jahre !!

Auf Anfrage stellen wir ihnen gern ein individuelles Mietangebot bzw. ein entsprechendes Exposé zur Verfügung.

Lage

Die Anbindung an den öffentlichen Nahverkehr ist hervorragend: Nahegelegene Straßenbahn-Haltestellen (Linie 12 und 15) sowie die Buslinie 60 garantieren eine schnelle Erreichbarkeit des gesamten Stadtgebiets. Die medizinische Versorgung ist ebenfalls erstklassig, mit zahlreichen Arztpraxen in der Umgebung und der fußläufig erreichbaren Universitätsklinik. Schulen und Hochschulen befinden sich ebenfalls in der Nähe.

Merkmale

  • Aufzug
  • DV-Verkabelung
  • Erstbezug
  • gewerbliche Nutzung möglich
  • Klimaanlage
  • provisionsfrei
  • Stellplatz / Garage

Adresse

04103 Leipzig / Zentrum-Ost

Auf Google Maps anzeigen

Objekt anfragen

Ähnliche Immobilien (130)

Immobilienbewertung Rückrufservice