Specks Hof zählt zu den traditionsreichsten Handelsimmobilien Leipzigs und reflektiert eindrucksvoll die Geschichte und Wandelbarkeit der Stadt. In einem großzügigen Gebäudeensemble mit kunstvoll gestalteten Innenhöfen bietet der Standort flexible Nutzungsmöglichkeiten für Gewerbe, Einzelhandel und Büro – eingebettet in einen architektonischen Rahmen, der historischen Charme mit zeitgemäßer Infrastruktur verbindet.
Ausstattung
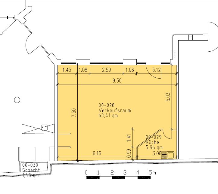
Das historische Geschäftshaus präsentiert sich mit lichtdurchfluteten Höfen, modernen Ausstattungsdetails und vielfältigen Flächenkonzepten. Großzügige Zugänge, flexible Grundrisse und stilvolle Architektur sorgen für einen repräsentativen Auftritt und ein angenehmes Arbeitsumfeld. Die Verbindung von Authentizität und Funktionalität schafft Raum für moderne Nutzungsanforderungen im Herzen Leipzigs.Lage
In der direkten Nachbarschaft zur Nikolaikirche gelegen, ist Specks Hof bestens in das pulsierende Zentrum von Leipzig integriert. Die Passage ist zentraler Bestandteil des innerstädtischen Geschäftsviertels und überzeugt durch ihre fußläufige Anbindung an ÖPNV, Gastronomie und wichtige Einkaufsstraßen. Somit profitieren Mieter und Besucher gleichermaßen von ausgezeichneten Erreichbarkeiten und einer starken Besucherfrequenz.Merkmale
- provisionsfrei
Adresse
Grimmaische Straße 13-15, 04109 Leipzig / Zentrum
Auf Google Maps anzeigen













