Das Wohn- und Geschäftshaus befindet sich in Leipzig- Neulindenau.
Ausstattung
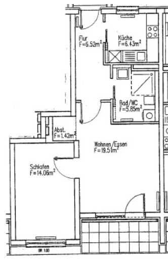
Die 2-Zimmer-Wohnung befindet sich im 1.Obergeschoss in zweiter, ruhiger Reihe des Objektes und ist bequem über den Lift zu erreichen.Die Wohnung verfügt über ein helles Wohnzimmer, eine Südterrasse und eine offene Küche.
Das Bad ist mit einer bodentiefen und modernen Dusche und einem Waschmaschinenanschluss ausgestattet.
Ein Kellerabteil ist ebenfalls vorhanden.
Lage
Der in Leipzig-Altwest liegende Stadtteil Neulindenau besticht durch seine ruhige Lage und ist eine Mischung aus Wohngebiet und alten Industrieanlagen. Das Lindenau Forum liegt verkehrsgünstig an der Lützner-/Saalfelder Straße und ist somit optimal an den ÖPNV angeschlossen (Straßenbahn/Bus/S-Bahn). Das Objekt beherbergt ebenfalls viele Ärzte, eine Post sowie verschiedene Einkaufsmöglichkeiten.Das Betreute Wohnen setzt auf die Selbstständigkeit der Bewohner und ist kein Heim und auch keine heimähnliche Einrichtung. Die im Haus befindliche Volkssolidarität bietet den Bewohnern der Seniorenwohnanlage Leistungen mit dem Ziel an, die Selbständigkeit langfristig zu erhalten und ein selbstbestimmtes Leben in Gemeinschaft zu ermöglichen, verbunden mit der Sicherheit, im Bedarfsfall jederzeit auf Hilfe und Pflegeleistungen zurückgreifen zu können.
Als Mieter schliesst man in Verbindung mit einem Mietvertrag einen Betreuungsvertrag in der Grundversorgung mit der Volkssolidarität ab (130 €/Monat als Einzelhaushalt, 175 €/Monat für einen Mehrpersonenhaushalt).
Hinsichtlich der Inanspruchnahme von Zusatzleistungen haben die Bewohner die Wahlfreiheit in Bezug auf Art und Umfang der Leistungen sowie der Leistungserbringer.
Merkmale
- Abstellraum
- Aufzug
- provisionsfrei
- seniorengerecht
- Stellplatz / Garage
- Terrasse
Adresse
Lützner Straße 160, 04179 Leipzig / Neulindenau
Auf Google Maps anzeigen










