Das EUTRITZER ZENTRUM bietet insgesamt 24.123 Quadratmeter Gesamtmietfläche, welche flexibel Ihren Ansprüchen nach variiert werden können.
Über das Eingangsfoyer erreichen Sie bequem den Aufzug zu den jeweiligen Etagen.
Dort angekommen erschließen sich moderne Büro- und Praxislösungen. Eine zeitgemäße Ausstattung ist Standard.
In unserem Geschäftsaufgang gibt es schon ein breites Spektrum an medizinischen Niederlassungen und Fachgebieten.
Vielleicht können Sie dies ja noch erweitern oder sinnvoll ergänzen?
Das Geschäftshaus verfügt über eine eigene Tiefgarage.
Ausstattung
Das moderne Geschäftshaus ist durch ein Rastermaß individuell an die Bedürfnisse Ihres Unternehmens anpassbar. Ob Einzel-, Gruppen-, oder Großraumbüro – sämtliche Flächennutzungen sind umsetzbar.Gern unterbreiten wir Ihnen ein individuelles Angebot.
Die wichtigsten Vorteile im Überblick:
• isolierverglaste Fenster
• Tiefgaragenstellplätze
• barrierefreier Zugang, Aufzug
Nutzen Sie die Vorteil eines modernen Geschäftshauses in zentraler Lage.
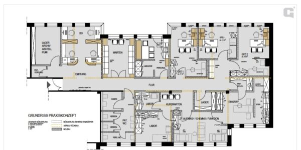
Die hier angebotene Gewerbefläche verfügt aktuell über 10 geschlossene Räume und einen großzügigen Eingangs-/Flurbereich.
Sanitärflächen und Teeküchen befinden sich im Flur direkt vor bzw. an der Gewerbefläche.
Sollte dies für Sie nicht praktikabel bzw. von Ihnen gewünscht sein und Sie die Sanitärflächen etc. eher in der Einheit sehen, dann wäre dies grundsätzlich möglich.
In diesem Fall würde jedoch ein Raum (Nr.10) entfallen und wir müssten die Mietkonditionen neu berechnen/verhandeln.
Ihre Ausstattungswünsche berücksichtigen wir für eine Neuvermietung und nach Möglichkeit natürlich gern.
Lage
Die sächsische Metropole Leipzig ist das Zentrum der europäischen Märkte und punktet mit seinem Luftfrachtdrehkreuz von DHL am Flughafen Leipzig.Im Norden von Leipzig, zwischen Gohlis und Mockau, liegt der Stadtteil Eutritzsch, ein sehr abwechslungsreiches Viertel. Die Häuserlandschaft ist nicht durch einen bestimmten Baustil geprägt sondern es finden sich viele verschiedene architektonische Bauten. Die Anbindung an das Stadtzentrum und die umliegenden Stadtbezirken ist hervorragend dank dem gut ausgebauten Bus- und Tramnetzes.
Einkaufsmöglichkeiten für den täglichen Bedarf und aller Art sind im Center selbst ausreichend vorhanden und erfüllen nahezu jeden Einkaufswunsch.
Merkmale
- Abstellraum
- Aufzug
- DV-Verkabelung
- gewerbliche Nutzung möglich
- Neubau
- neuwertig
- provisionsfrei
- Stellplatz / Garage
Adresse
04129 Leipzig / Eutritzsch
Auf Google Maps anzeigen





















