Hübsche kleine Dachgeschoßwohnung in ruhiger und beliebter Lage im Leipziger Norden mit Tageslichtbad, Wanne und großem Gemeinschaftsgarten.
Ausstattung
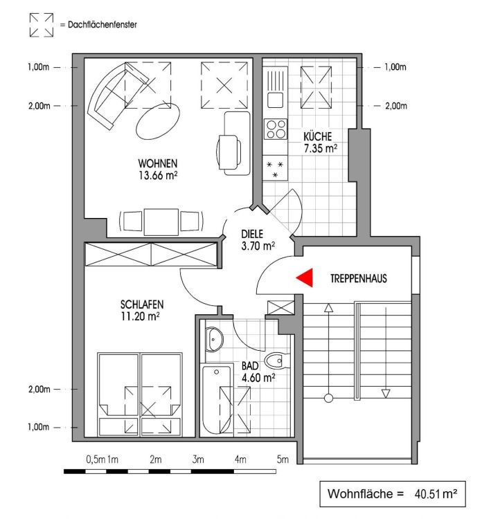
Diese schöne 2-Raum-Wohnung im Dachgeschoss erstreckt sich über 41 m² und bietet alles, was Sie zum Wohlfühlen benötigen. Sie verfügt über ein praktisches Schlafzimmer, eine separate und geräumige Küche und ein Tageslichtbad mit Wanne. In allen Wohnräumen sind Laminatböden vorzufinden. Stauraum wird durch einen zusätzlichen Kellerabteil gewährleistet.Die hier aufgeführten Fotos stammen aus einer Vergleichswohnung im Objekt und dienen ausschließlich der Demonstration, da uns zur beworbenen Wohnung noch kein aussagekräftiges Bildmaterial zur Verfügung steht.
Lage
Im Norden von Leipzig, zwischen Gohlis und Mockau, liegt der Stadtteil Eutritzsch, ein sehr abwechslungsreiches Viertel. Die Häuserlandschaft ist nicht durch einen bestimmten Baustil geprägt sondern es finden sich viele verschiedene architektonische Bauten. Der Arthur-Bretschneider-Park, im Westen von Eutritzsch gelegen, lädt ein zum Spazierengehen und Entspannen. Einkaufsmöglichkeiten für den täglichen Bedarf sind hauptsächlich rund um die Delitzscher Straße auffindbar. Hier wird jeder Einkaufswunsch erfüllt. Zudem ist eine Einkaufspassage im Zentrum von Eutritzsch untergebracht.Die Anbindung an das Stadtzentrum und die umliegenden Stadtbezirken ist hervorragend dank dem gut ausgebauten Bus- und Tramnetz.
Merkmale
- Abstellraum
- Altbau
- Gartennutzung
- Keller
- provisionsfrei
- saniert
Adresse
Anhalter Straße 22, 04129 Leipzig / Eutritzsch / Eutritzsch
Auf Google Maps anzeigen















