Das EUTRITZSCHER ZENTRUM bietet insgesamt 24.123 Quadratmeter Gesamtmietfläche, welche flexibel Ihren Ansprüchen nach variiert werden können.
Über das Eingangsfoyer erreichen Sie die jeweiligen Etagen bequem über den Aufzug.
Dort angekommen erschließen sich moderne Bürolösungen. Eine zeitgemäße und moderne Ausstattung ist Standard.
Das Geschäftshaus verfügt über eine eigene Tiefgarage.
Ausstattung
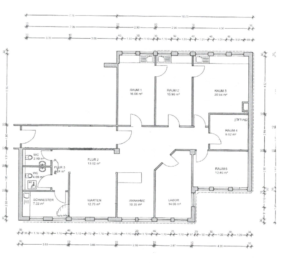
Die hier angebotene Praxisfläche verfügt über einen attraktiven Eingangsbereich mit Empfangstresen, einen großzügigen Wartebereich, 2 Sanitärflächen, eine Teeküche bzw. einen Aufenthaltsraum, ein Labor und 5 Behandlungsräumen.Aktuell ist die Fläche noch vermietet und wird aktiv genutzt.
Gesucht werden deshalb Mediziner oder Therapeuten, welche diese eigentlich schon perfekte Fläche übernehmen und auch mit Ihrem Berufsfeld in unser Ärztehaus passen bzw. dieses ergänzen und bereichern.
In unserem Ärztehaus würden sich noch die Fachgebiete Kardiologie, Urologie, Dermatologie, Neurologie oder eine internistische Nutzung anbieten.
Wir freuen uns auf Ihre Kontaktaufnahme und stehen für Fragen oder zur Terminabsprache gern auch persönlich zur Verfügung.
Lage
Die sächsische Metropole Leipzig ist das Zentrum der europäischen Märkte und punktet mit seinem Luftfrachtdrehkreuz von DHL am Flughafen Leipzig.Im Norden von Leipzig, zwischen Gohlis und Mockau, liegt der Stadtteil Eutritzsch, ein sehr abwechslungsreiches Viertel. Die Häuserlandschaft ist nicht durch einen bestimmten Baustil geprägt sondern es finden sich viele verschiedene architektonische Bauten. Die Anbindung an das Stadtzentrum und die umliegenden Stadtbezirken ist hervorragend dank dem gut ausgebauten Bus- und Tramnetzes.
Einkaufsmöglichkeiten für den täglichen Bedarf und aller Art sind im Center selbst ausreichend vorhanden und erfüllen nahezu jeden Einkaufswunsch.
Merkmale
- Abstellraum
- Aufzug
- DV-Verkabelung
- gewerbliche Nutzung möglich
- Neubau
- neuwertig
- provisionsfrei
- seniorengerecht
- Stellplatz / Garage
Adresse
04129 Leipzig / Eutritzsch
Auf Google Maps anzeigen

































