Interessante, kleine Singlewohnung mit günstiger Raumaufteilung, Tageslichtbad mit Dusche, EBK und sehr guter Verkehrsanbindung.
Ausstattung
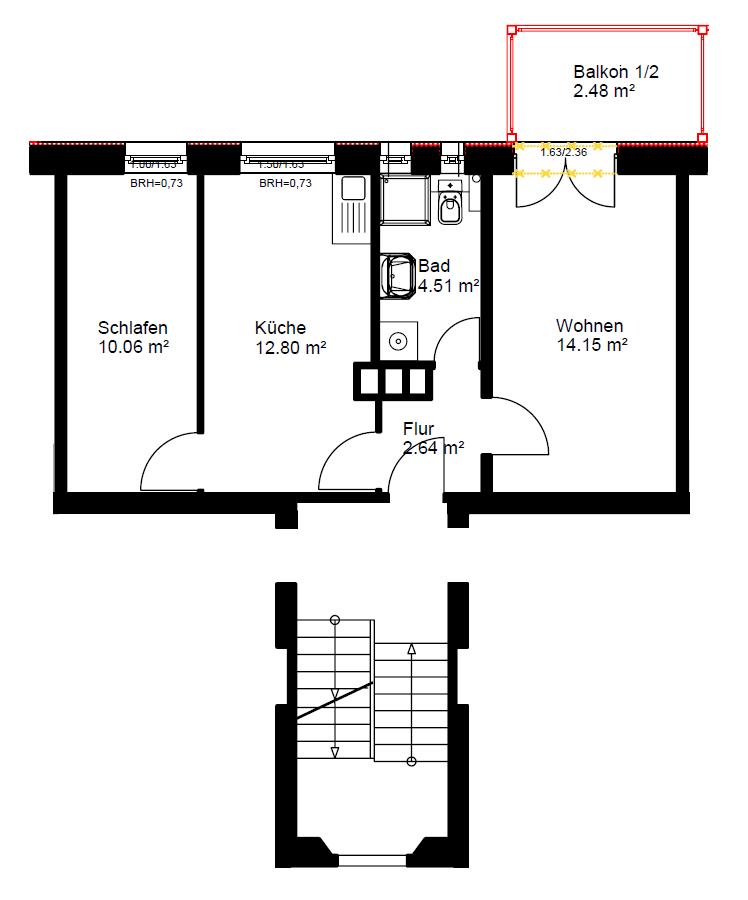
Moderne und helle Zweiraumwohnung mit Tageslichtbad und Dusche im 1.Obergeschoss.Die Wohnung mit neuem Balkon ist komplett zum grünen Innenhof ausgerichtet.
In der separaten Küche erwartet sie eine ansprechende und funktionale Einbauküche, welche Mietbestandteil ist.
Lage
Im Norden von Leipzig, zwischen Gohlis und Mockau, liegt der Stadtteil Eutritzsch, ein sehr abwechslungsreiches Viertel.Der naheliegende Arthur-Bretschneider-Park, im Westen von Eutritzsch gelegen, lädt ein zum Spazierengehen und Entspannen.
Einkaufsmöglichkeiten für den täglichen Bedarf sind im direkten Umfeld vorhanden und teilweise fußläufig erreichbar.
Die Anbindung an das Stadtzentrum und die umliegenden Stadtbezirken ist hervorragend.
Merkmale
- Abstellraum
- Altbau
- Balkon
- Gartennutzung
- Keller
- provisionsfrei
- saniert
Adresse
Delitzscher Straße 144, 04129 Leipzig / Eutritzsch
Auf Google Maps anzeigen

















