Moderne und komplett sanierte Wohnung in ruhiger Lage und beliebter Lage im Leipziger Norden mit Duschbad und sehr großzügigem Mietergemeinschaftsgarten.
Ausstattung
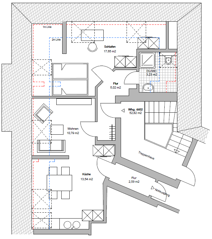
Diese neu sanierte Dachgeschosswohnung verfügt über ein großzügiges Wohnzimmer mit angrenzender Wohnküche sowie ein modern gefliestes Badezimmer mit Dusche. In allen Wohnräumen ist ein schöner Laminatboden verlegt. Zusätzlicher Stauraum wird durch einen separaten Kellerabteil gewährleistet. Zudem besteht die Möglichkeit zur Nutzung des großen Mietergemeinschaftsgartens.Die inserierten Bilder stammen zum Teil aus einer Vergleichswohnung und dienen ausschließlich der Demonstration.
Lage
Eutritzsch ist ein Stadtteil im Leipziger Norden und gehört zum Stadtbezirk Nordwest. Er ist durch seine Mischung aus Wohngebieten, Gewerbegebieten und grünen Flächen geprägt und hat eine interessante Geschichte, die von der Entwicklung Leipzigs als Industriestadt beeinflusst wurde. Hier sind einige Merkmale von Eutritzsch:Eutritzsch liegt nördlich des Leipziger Zentrums und ist gut an den öffentlichen Nahverkehr angebunden. Die Straßenbahnlinien 4 und 7 sowie verschiedene Buslinien verbinden den Stadtteil mit der Innenstadt und anderen Stadtteilen. Besonders hervorzuheben ist die Nähe zur Bundesstraße B2 und zur A14, die eine schnelle Verbindung in die Umlandgemeinden und zu anderen Städten ermöglicht.
Der Stadtteil zeichnet sich durch eine Mischung aus älteren, teils sanierten Plattenbauten und sanierten Altbauten aus. Insbesondere im Bereich der ehemaligen Arbeiterviertel sind viele Wohnhäuser aus der Gründerzeit und der Zeit der Industrialisierung zu finden. In den letzten Jahren hat Eutritzsch von einer verstärkten Sanierung und Modernisierung profitiert, was den Stadtteil für junge Familien und auch Studenten attraktiv gemacht hat.
Trotz seiner urbanen Prägung hat Eutritzsch zahlreiche Grünflächen und Erholungsgebiete zu bieten. Der nahegelegene „Friedenspark“ und die „Kleingartenanlagen“ bieten Raum für Erholung und Freizeitaktivitäten. Besonders für Spaziergänge oder kleine Ausflüge in der Natur ist der Stadtteil aufgrund seiner grünen Umgebung ein schöner Anlaufpunkt.
Eutritzsch bietet eine gute Infrastruktur. Der Stadtteil hat diverse Einkaufsmöglichkeiten, darunter Supermärkte, Discounter und kleinere Geschäfte, die den täglichen Bedarf abdecken. Besonders die Nähe zu den größeren Einkaufszentren im Leipziger Norden, wie dem „Kaufland“ oder dem „Mediamarkt“, macht das Einkaufen bequem.
Historisch gesehen war Eutritzsch ein Zentrum für industrielle Entwicklung in Leipzig. Der Stadtteil war von vielen Fabriken geprägt, die heute größtenteils verschwunden oder umgewandelt worden sind. Dennoch gibt es immer noch einige Gewerbe- und Industrieflächen, die den wirtschaftlichen Charakter von Eutritzsch prägen. Inzwischen hat sich der Stadtteil auch als Standort für kleinere Unternehmen, Start-ups und Büros etabliert.
Die kulturelle Szene in Eutritzsch ist eher von kleineren Initiativen und Veranstaltungen geprägt. Es gibt einige lokale Cafés, Restaurants und kleinere Kulturvereine, die das soziale Leben im Stadtteil bereichern. Außerdem hat der Stadtteil eine gute Anbindung an die kulturellen Angebote Leipzigs, wie Museen, Theater und Musikveranstaltungen.
Für Familien, die in Eutritzsch wohnen, gibt es eine Reihe von Schulen, darunter Grundschulen und weiterführende Schulen. Auch das Bildungsangebot außerhalb des Stadtteils, wie die Universität Leipzig oder Fachhochschulen, ist gut erreichbar.
Eutritzsch hat in den letzten Jahren eine zunehmende Gentrifizierung erfahren, was sich in der Sanierung von Wohngebäuden und dem Zuzug junger Leute widerspiegelt. Die Entwicklung des Stadtteils wird weiterhin von einer positiven Dynamik geprägt sein, da weitere Modernisierungen und Investitionen in die Infrastruktur zu erwarten sind.
Merkmale
- Abstellraum
- Altbau
- Fahrradraum
- Gartennutzung
- Keller
- provisionsfrei
- saniert
Adresse
Anhalter Straße 24a, 04129 Leipzig / Eutritzsch
Auf Google Maps anzeigen
















