Ansicht

Forum am Mariannenpark

04347 Leipzig / Schönefeld-Ost
  • Ansicht
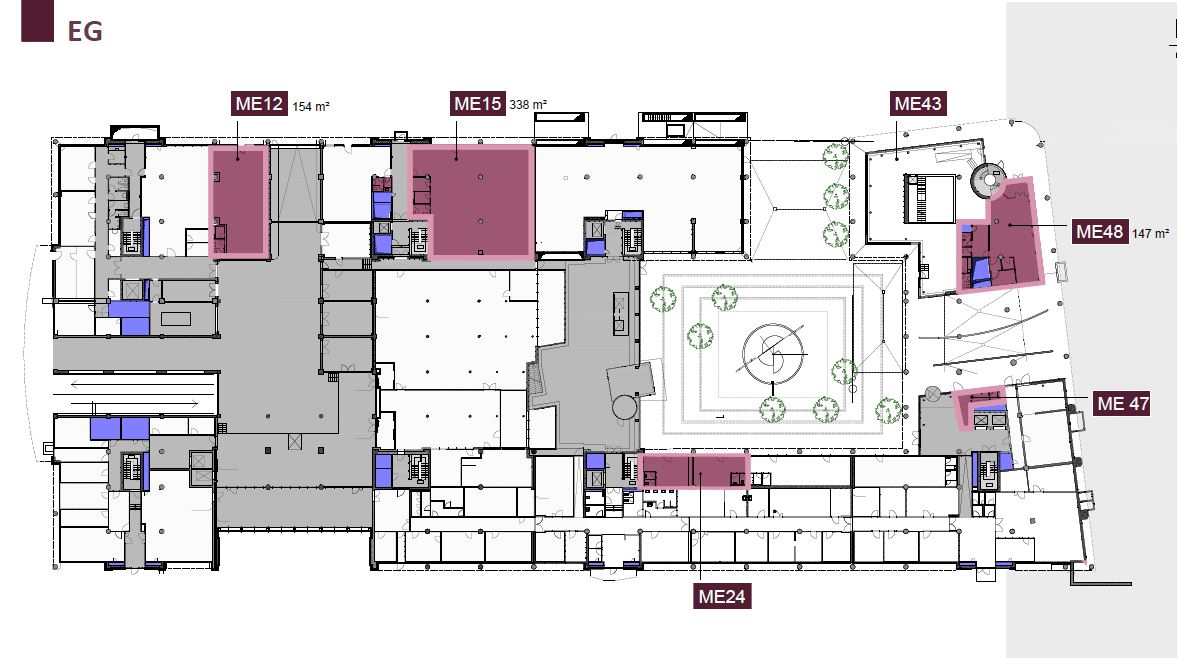
  • EG ca. 338 m²
  • Innenansicht
  • Innenansicht
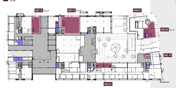
  • EG ges.
  • Hausansicht Rohrteichstraße 16-20
  • Ansicht
  • Ansicht
  • Ansicht
  • Innenbereich

Der 1995 errichtete und 2022/2023 modernisierte Gebäudekomplex in unmittelbarer Nähe zum Mariannenpark besticht durch einen einladenden Innenhof und eine zweigeschossige Passage, die direkt mit dem Stannebeinplatz verbunden ist. Dank einer durchdachten Modernisierung erstrahlt das 7-geschossige Bürogebäude in hervorragender Bauqualität und mit einem lichtdurchfluteten Atrium in neuem Glanz. Hochwertige Ausstattung und modernste Technik schaffen optimale Bedingungen für produktives Arbeiten.

Zu den Highlights der Modernisierung zählen:

Vollständig erneuerte Gebäudeautomation
LED-Beleuchtung in allen allgemeinen und Außenbereichen
Installation von bis zu 40 E-Ladestationen
Einführung eines elektronischen Schließsystems
Modernisierung der Aufzüge
Komplette Erneuerung der Brandmeldeanlage
Schaffung attraktiver Sozialflächen im Innen- und Außenbereich
Ausreichend Fahrradstellplätze (überwiegend überdacht)
Die hauseigene Gastronomie „Kochkessel“ bietet Mittagsspeisen in angenehmer Atmosphäre
Integration von Informationsscreens in den Allgemeinflächen

Zusätzlich wird eine 24/7 Objektbewachung an 365 Tagen im Jahr gewährleistet. Das Gebäude ist nach BREEAM mit „Exzellent“ zertifiziert (in finaler Umsetzung) und verfügt über eine ECORE-Zertifizierung.

Dieser Standort vereint modernes Arbeiten mit einem ansprechenden Umfeld!

Ausstattung

Die Büroflächen bieten flexible Gestaltungsmöglichkeiten dank eines Hohlraumbodens und teilweise klimatisierter Räume, die sich individuell an die Bedürfnisse der Mieter anpassen lassen. In der Tiefgarage stehen rund 490 Parkplätze zur Verfügung. Die Mietkonditionen richten sich nach dem spezifischen Ausbau und der gewünschten Vertragslaufzeit. Anmietung ab einer Mietvertragslaufzeit von 5 Jahren.

Die Ausstattung umfasst:

Raum- und Belegungsplanung nach Mieterwunsch mit doppelt beplankten GK-Wänden (mindestens 40 dB Schallschutz)
Hochwertige Fliesen als Bodenbelag für hohe Beanspruchung
Voll ausgestattete Teeküche
Energiesparende LED-Arbeitsplatzleuchten (100-500 Lux)
Anpassung der Technik an die neue Raumstruktur
Optionaler Glasanteil als Ausstattungsstandard
Antistatischer, stuhlrollenfester Teppichboden
Teilweise klimatisierte Großraumbüros
Zugang zur Mietfläche über Aufzüge oder Treppenhäuser
Außenliegender Sonnenschutz und wärmedämmendes, farbneutrales Fensterglas
Überdachter Ladehof und Betriebsrestaurant im 2. Obergeschoss

Lage

Das Objekt liegt im nordöstlichen Randbereich der Leipziger Innenstadt an der Rohrteichstraße und befindet sich in einer städtebaulich attraktiven Lage zwischen dem Mariannenpark im Norden und den Bahnanlagen mit der S-Bahnhaltestelle Volkmarsdorf im Süden.
Im Westen grenzt ein teilweise bebautes Grundstück an die Bahn, während sich im Osten, jenseits der Hermann-Liebmann-Straße, der Stannebeinplatz mit vier- und fünfgeschossiger Bebauung befindet. Das Büro- und Geschäftshaus ist in nur wenige Fahrminuten vom Hauptbahnhof entfernt und direkt gegenüber dem Mariannenpark gelegen. Eine Passage verbindet das Objekt mit dem Stannebeinplatz. ÖPNV-Haltestellen sind in unmittelbarer Nähe vorhanden. In Abtnaundorf sowie der näheren Umgebung findet man ein vielfältiges gastronomisches Angebot, zudem verfügt das Objekt über eine hauseigene Kantine.

Merkmale

  • Aufzug
  • DV-Verkabelung
  • Einbauküche
  • gewerbliche Nutzung möglich
  • modernisiert
  • provisionsfrei
  • Stellplatz / Garage

Adresse

04347 Leipzig / Schönefeld-Ost

Auf Google Maps anzeigen

Objekt anfragen

Ähnliche Immobilien (133)

Immobilienbewertung Rückrufservice