Die Wohnung befindet sich in ruhiger Lage in einem sanierten Mehrfamilienhaus.
Ausstattung
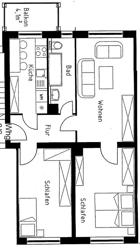
Diese gemütliche 3-Zimmer-Wohnung befindet sich im 2. Obergeschoss und überzeugt durch eine praktische Raumaufteilung. Die separate Küche bietet ausreichend Platz und ermöglicht den direkten Zugang zum Balkon. Das Tageslichtbad ist mit einer Badewanne ausgestattet und sorgt für eine angenehme Atmosphäre. In den Wohnräumen ist pflegeleichter Laminatboden verlegt. Ein Innenhof steht der Mietergemeinschaft zur gemeinschaftlichen Nutzung zur Verfügung und lädt zum Verweilen ein.Lage
Der Stadtteil Gohlis-Nord präsentiert sich insgesamt als sehr ruhig und wohnlich. Die Gründerzeitbauten dominieren hier wie auch in den beiden Nachbarn Gohlis-Süd und –Mitte. Einzig westlich in Gohlis-Nord finden sich Häuserzeilen die der klassischen Moderne einzuordnen sind. Die nördliche Hälfte des Viertels ist vollständig von Kleingärten und viel Grün besiedelt und bietet Erholung und Genuss. Der Stadtteil Gohlis-Nord präsentiert sich insgesamt als sehr ruhig und wohnlich. Die Gründerzeitbauten dominieren hier wie auch in den beiden Nachbarn Gohlis-Süd und –Mitte. Einzig westlich in Gohlis-Nord finden sich Häuserzeilen die der klassischen Moderne einzuordnen sind. Die nördliche Hälfte des Viertels ist vollständig von Kleingärten und viel Grün besiedelt und bietet Erholung und Genuss.Merkmale
- Abstellraum
- Altbau
- Balkon
- Gartennutzung
- Haustiere erlaubt
- Keller
- provisionsfrei
Adresse
Knöfler Straße 7, 04157 Leipzig / Gohlis-Nord
Auf Google Maps anzeigen























