Ihr neuer Unternehmenssitz in Eutritzsch – Repräsentatives Gebäude, seriöse Mieterschaft im Haus, schicke Büroflächen und das alles zu sensationell günstigen Konditionen!
Im Haus sind auch unausgebaute Fläche verfügbar. Hier können Sie als Nutzer Ihre Vorstellungen verwirklichen.
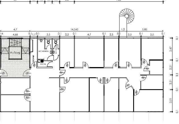
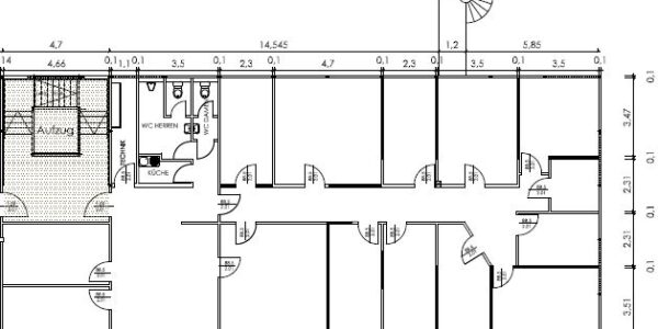
Ausstattung
Geräumige Treppenhäuser, hochwertiger textiler Bodenbelag und flexible Raumgestaltungen prägen die Ausstattung.Details:
    außenliegendes Sonnenschutzsystemen
    Flur- und Büroeinheiten in frischem Weiß gestrichen
    Geflieste Wände in den WC-Anlagen
    Linoleum oder Teppichboden in Fluren, Aufenthaltsbereichen und Büros
    Fliesen in den WC-Anlagen und Küchen
    Kassettendecken mit integrierten Rasterleuchten
    Kabelkanäle für Elektrosteckdosen sowie USB-Steckdosen
    Personenaufzug für bequemen Zugang
Lage
Die Zschortauer Straße 69-71 befindet sich im lebendigen Leipziger Stadtteil Eutritzsch, nordöstlich des Stadtzentrums. Dank der unmittelbaren Nähe zur Bundesstraße 2 und 6 ist der Standort optimal aus allen Teilen Leipzigs erreichbar. Zudem profitieren die Anwohner von der nahegelegenen Bahnstation Essener Straße sowie der Bundesautobahn 14 mit der Abfahrt Leipzig-Mitte, was eine hervorragende überregionale Anbindung gewährleistet.Die Umgebung profitiert stark von einer gut ausgebauten Infrastruktur, die durch zahlreiche ansässige Unternehmen geprägt ist. Hier trifft eine vielfältige Mischung aus Dienstleistungen und mittelständischen Betrieben auf namhafte Firmen wie Hornbach und das Klinikum St. Georg Leipzig, was diesen Standort besonders attraktiv macht.
Merkmale
- Aufzug
- DV-Verkabelung
- gepflegt
- provisionsfrei
- Stellplatz / Garage
Adresse
04129 Leipzig , Eutritzsch / Eutritzsch
Auf Google Maps anzeigen















 
			 
				 
				 
				 
				 
				 
				 
				