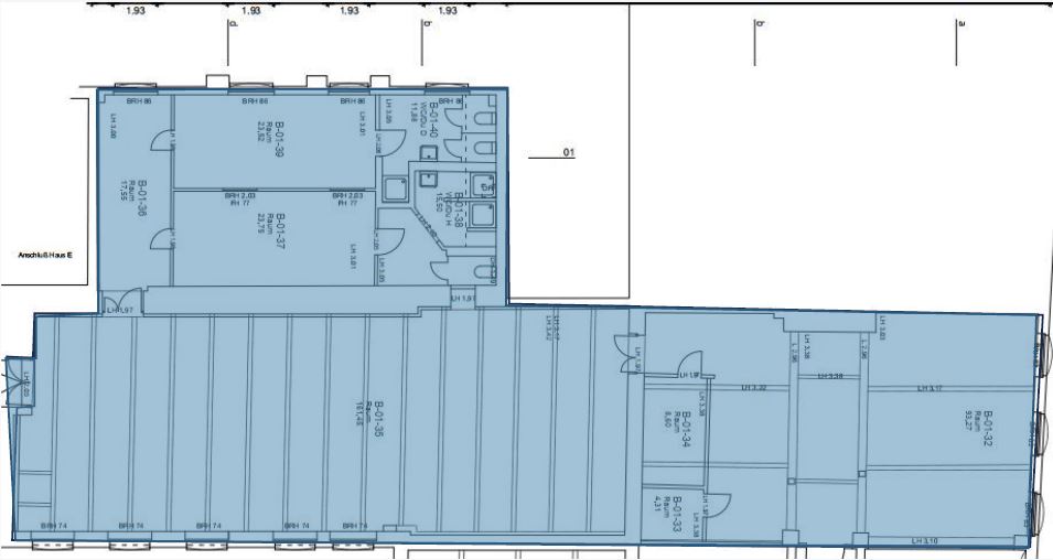
Das 1998 sanierte bzw. neu erbaute Büro- und Geschäftshaus verfügt über insgesamt ca. 17.500 m² Nutzfläche, die sich über 5 separate Hauseingänge erschließen.
Auf dem Gelände der Angerhöfe stehen Ihnen zusätzlich zahlreiche Stellplätze sowie Nebenflächen zur Verfügung. Die einzelnen Mieteinheiten weisen einen modernen Bürostandard auf und können auf Kundenwunsch in Fläche und Ausstattung angepasst werden.
Die Mieteinheiten reichen von ca. 100 m² bis zum kompletten Stockwerk, das etwa 2.400 m² bietet. Durch die ehemalige Nutzung des Gebäudes – durch das Amtsgericht Leipzig – profitiert, dass Objekt durch seine behindertengerechten Erschließung sowie durch höher Brandschutzauflagen, die es auch größeren Bildungsträgern erlauben hier anzumieten.
Ausstattung
Die Angerhöfe ermöglichen durch ihre Flexibilität und Funktionalität in Flächengestaltung und Ausstattung die unterschiedlichen Nutzungsvarianten. Derzeit reicht der Mietermix vom Finanzamt über Bildungsträger bis zum klassischen Ingenieurbüro und wir würden uns freuen, wenn das Gebäudekonzept auch Ihren Ansprüchen gerecht wird und wir Sie von dem Standort Angerhöfe überzeugen können.Objektausstattung:
„Aufzüge
„behindertengerechte Erschließung
„zahlreiche Stellplätze
„Objektbewachung 24h
„Lagerräume im Kellergeschoss
„Fahrradraum
Ausstattung Mietflächen
„Bodenbelag in Abstimmung
„Integrierte Beleuchtungskörper im Bürobereich
„flexible Wandkabelkanäle
„Fliesen in Küchen- und Sanitär-bereich
„Änderung der Ausstattung in Abstimmung mit dem Mieter möglich
Lage
Das Herzstück und zugleich Wahrzeichen von Lindenau ist der Lindenauer-Markt. Der von Linden umgebene Marktplatz wurde schon Mitte des 19. Jahrhunderts für Wochenmärkte sowie Spektakel und Veranstaltungen genutzt. Auch heute noch bildet dieser Markt das geschäftliche Zentrum des Stadtteils und ist geprägt von lebendigen Treiben.Unweit vom Markt entfernt, befinden sich hinter einer eindrucksvollen Fabrikfassade… die Angerhöfe. Ein restaurierter und zum Teil neu errichteter Geschäfts- und Bürokomplex, der durch flexible Raumprogramme und einem attraktiven Mietzins zahlreiche Nutzungsvarianten zulässt.
Merkmale
- Abstellraum
- Altbau
- Aufzug
- DV-Verkabelung
- gewerbliche Nutzung möglich
- Kantine / Cafeteria
- provisionsfrei
- saniert
- Stellplatz / Garage
Adresse
Angerstraße 38-44, 04177 Leipzig / Altlindenau
Auf Google Maps anzeigen

























