KONSTANTINUM LEIPZIG – zukunftsträchtige Lage im Herzen Leipzigs mit perfekter Infrastruktur.
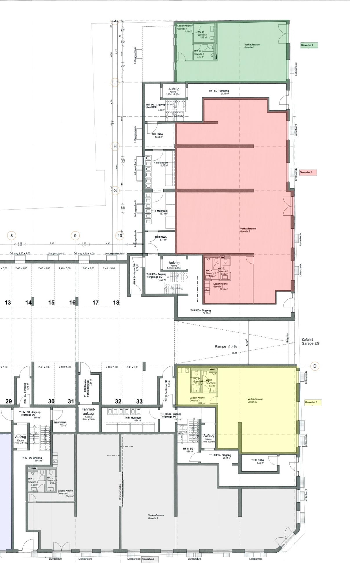
Im Neubau „KONSTANTINUM“ befinden sich vom EG bis zum 8. Obergeschoss 123 Wohnungen sowie 9 Gewerbeeinheiten, von denen 7 als Gewerbeflächen im Erdgeschoss und zwei als Büroeinheiten im 1.Obergeschoss genutzt werden können.
Die Verkaufsflächen im Erdgeschoss verfügen über großzügige Fensterfronten mit direkter Gehweglage und guter Sichtbarkeit.
Ausstattung
– schnelle Daten- und Telekommunikation über Glasfaser/Koaxial möglich– barrierefreier Zugang
– flexible Raumaufteilung und Raumgestaltung möglich
– bodentiefe Fensterflächen
– ausreichend der PKW-Stellplätze in der Tiefgarage verfügbar
Lage
Das Wohn- und Geschäftshaus „KONSTANTINUM“ befindet sich an der Ecke Kohlgartenstraße/Konstantinstraße in Leipzig und genießt durch seine direkte Lage an der Grenze zum Zentrum-Ost dessen Standortvorteile.Die Innenstadt ist in wenigen Minuten zu Fuß erreichbar. Infrastrukturell ist der Stadtteil mit Bus und Straßenbahn, Hauptverkehrs- und Bundesstraßen sowie zahlreichen Radwegen sehr gut ausgestattet.
In der unmittelbaren Nachbarschaft finden sie schon êine große Ansammlung bekannter und namhafter Unternehmen sowie Schulungszentren.
Die Beschäftigten der umliegenden Bürohäuser, die Bewohner des Hauses, als auch Nutzer des öffentlichen Nahverkehrs passieren das „KONSTANTINUM“ täglich in hoher Frequenz und stellen somit potentielle Kunden für unterschiedliche Geschäftsfelder dar.
Merkmale
- Aufzug
- DV-Verkabelung
- gewerbliche Nutzung möglich
- neuwertig
- provisionsfrei
- Stellplatz / Garage
Adresse
04315 Leipzig / Neustadt-Neuschönefeld
Auf Google Maps anzeigen



















