Modernes Wohn- und Geschäftshaus in Leipzig Leutzsch mit bester Verkehrsanbindung.
Ausstattung
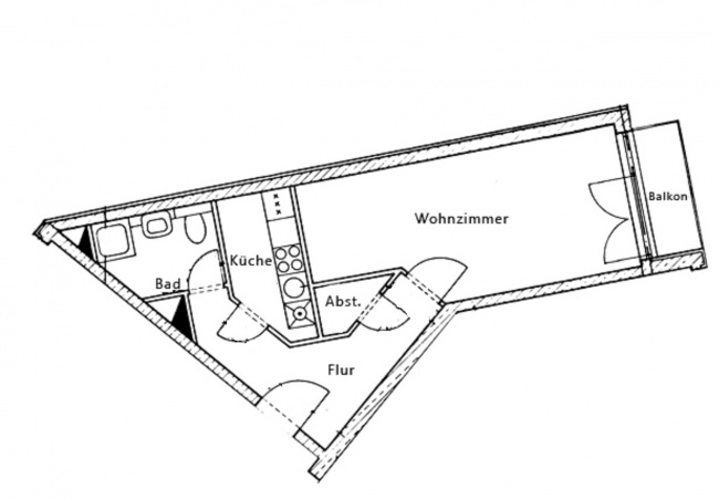
++ tolles Singleapartment ++ Laminatboden ++ 3.Obergeschoß ++ separate Küche ++ Balkon ++ Duschbad ++ Abstellraum ++ Lift ++ Anmietung eines Tiefgaragenstellplatzes möglich ++Lage
Der westlich gelegene Stadtteil Leutzsch gilt als naturnahes Viertel mit industriellem Charme. Das ehemals klassische Industriellen- und Arbeiterviertel gilt heute als ruhiger und kontrastreicher Stadtteil. Einfache Arbeiterwohnungen sowie auch hochexklusive Villen prägen hier das Stadtbild. Die Nähe zum Auenwald garantiert etliche Freizeitaktivitäten. Durch die gute Infrastruktur ist man mit öffentlichen Verkehrsmitteln schnell im Stadtzentrum. Einkaufsmöglichkeiten für den täglichen Bedarf sind zahlreich vorhanden.us befindet in einer Seitenstraße im beliebten Stadtteil Leutzsch. Einkaufsmöglichkeiten, Schulen und Anbindung an öffentliche Verkehrsmittel befinden sich in unmittelbarer Umgebung. Die Innenstadt ist mit den öffentlichen Verkehrsmitteln in zehn Minuten erreichbar.Merkmale
- Abstellraum
- Aufzug
- Balkon
- Fahrradraum
- gepflegt
- Haustiere erlaubt
- Stellplatz / Garage
Adresse
Ellernweg 1a, 04179 Leipzig / Leutzsch
Auf Google Maps anzeigen

















