Gepflegte Wohnanlage mit ansprechenden Wohnungen und Grundrissen für den Singlehaushalt und auch die Familie.
Die Mehrheit der Wohnungen verfügen über einen Balkon oder eine Terrasse.
Ein Tiefgaragenstellplatz ist optional und bei Verfügbarkeit anmietbar.
Ausstattung
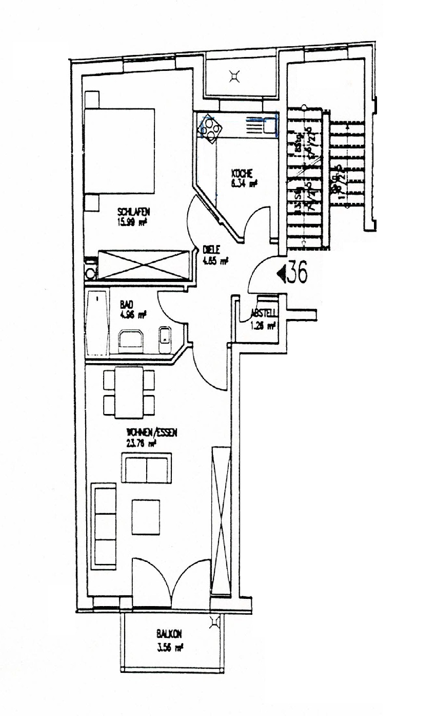
Die ansprechende und geräumige 2-Raumwohnung im 1.Obergeschoß punktet mit einem großen Wohnbereich mit Balkonzugang, einem geräumigen Schlafzimmer und einem Wannenbad.Die kleine und separate Küche ist funktional. Ein Abstellraum in der Wohnung rundet das Angebot ab.
Das Objekt ist mit einem Aufzug ausgestattet und in der Tiefgarage können – bei Verfügbarkeit – Stellplätze angemietet werden.
Hier aufgeführte Bilder stammen aus einer Vergleichswohnung im Objekt und dienen ausschließlich der Demonstration, da uns zur hier angebotenen Wohnung leider noch kein aussagekräftiges Bildmaterial vorliegt.
Lage
Das Wohnhaus befindet sich im Stadtteil „Neue Neustadt“ mit kurzer Anbindung an den Magdeburger Ring.Viele Märkte und Versorger für den täglichen Bedarf befinden sich im nahen und teilweise fußläufigen Umfeld.
Auch der Zoologische Garten ist nur wenige Querstraßen entfernt und lädt zum Verweilen ein.
Merkmale
- Abstellraum
- Aufzug
- Balkon
- provisionsfrei
- saniert
- Stellplatz / Garage
Adresse
Schmidtstraße 57-59, 39124 Magdeburg
Auf Google Maps anzeigen



















