Diese Immobilie wird in den Jahren 2025/2026 umfassend und zeitgemäß modernisiert. Sie erwartet ein hochmoderner Bürostandort, der eine hervorragende Anbindung an die Dresdner Innenstadt sowie an regionale und überregionale Ziele bietet, dank der direkten Verbindung zur A4 und dem Flughafen Dresden. Hier haben Sie die einmalige Chance, als Solitärmieter Ihre Firmenzentrale zu etablieren.
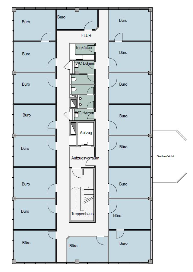
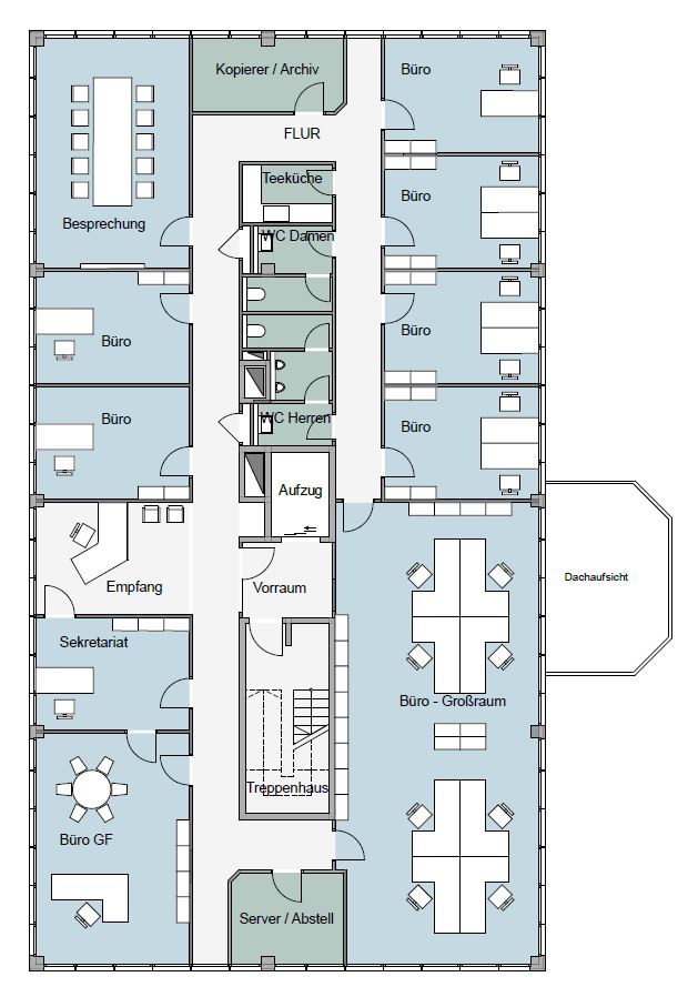
In Bezug auf die Ausstattung stehen Ihnen zahlreiche Optionen zur Verfügung. Bitte beachten Sie, dass der Mietpreis pro Quadratmeter je nach gewählter Ausstattung variieren kann. Neben modernen Teeküchen und Sanitäreinrichtungen haben Sie auch die Möglichkeit, Ihre Einheit individuell auszubauen. Zudem bieten wir Ihren Mitarbeitern bequeme Parkmöglichkeiten in der Tiefgarage oder auf den zugehörigen Außenstellplätzen.
Ausstattung
Der Mietpreis für die angebotene Immobilie richtet sich nach dem Umfang und Grad des Ausbaus. Wir unterstützen Sie gerne bei der Planung und Umsetzung Ihres Projekts und passen die Immobilie individuell an Ihre Bedürfnisse an.Ob Lagerflächen, Büroflächen, Labor- und Forschungsbereiche oder spezialisierte Einrichtungen – wir bieten flexible Gestaltungsmöglichkeiten und begleiten Sie bei jedem Schritt, von der Planung bis zur Umsetzung. Gern entwickeln wir für Sie ein maßgeschneidertes Angebot, das optimal auf Ihre Anforderungen abgestimmt ist. Lassen Sie uns gemeinsam Ihre Vision verwirklichen!
Lage
Die Immobilie befindet sich in Radebeul, liebevoll auch als das sächsische Nizza bezeichnet. Diese idyllische Stadt am Elbufer vereint malerische Weinberge mit historischem Charme und einer lebendigen Kulturszene. In nur wenigen hundert Metern Entfernung liegt die Landeshauptstadt Dresden, die mit ihren beeindruckenden kulturellen und historischen Sehenswürdigkeiten lockt.Radebeul bietet somit nicht nur eine attraktive Umgebung für Arbeitnehmer, sondern präsentiert sich auch als optimaler Bürostandort. Die Nähe zu Dresden bedeutet eine exzellente Anbindung an ein wirtschaftliches Zentrum mit vielfältigen Möglichkeiten. Hier treffen hohe Lebensqualität und beste berufliche Perspektiven in idealer Weise aufeinander.
Merkmale
- Abstellraum
- Aufzug
- DV-Verkabelung
- gewerbliche Nutzung möglich
- modernisiert
- provisionsfrei
- Stellplatz / Garage
Adresse
Birkenstraße 15, 01445 Radebeul
Auf Google Maps anzeigen





















