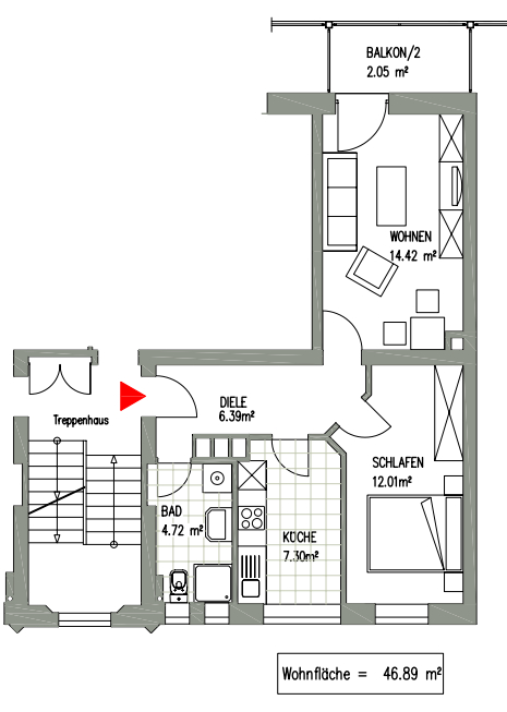
Ruhige Singlewohnung mit günstiger Raumaufteilung, Tageslichtbad, Dusche und Balkon.
Ausstattung
Diese schöne 2-Raum-Wohnung im 1. Obergeschoss verfügt über einen ansprechenden Grundriss.Das neu sanierte Tageslichtbad mit Dusche und der moderne Bodenbelag schaffen eine angenehme Wohnatmosphäre.
Der Balkon mit Hofausrichtung und grünem Ausblick lädt zum Verweilen ein.
Lage
Im Norden von Leipzig, zwischen Gohlis und Mockau, liegt der Stadtteil Eutritzsch, ein sehr abwechslungsreiches Viertel.Der Arthur-Bretschneider-Park, im Westen von Eutritzsch gelegen, lädt ein zum Spazierengehen und Entspannen.
Einkaufsmöglichkeiten sind z.T. fußläufig erreichbar.
Die Anbindung an das Stadtzentrum und die umliegenden Stadtbezirken mit den öffenetlichen Verkehrsmitteln ist hervorragend.
Merkmale
- Abstellraum
- Altbau
- Balkon
- Gartennutzung
- Keller
- saniert
Adresse
Delitzscher Straße 142, 04129 Leipzig / Eutritzsch
Auf Google Maps anzeigen



















