Saniertes Mehrfamilienhaus in ruhiger Seitenstraße mit großem grünen Mietergemeinschaftsgarten.
Hinweis zur Courtage:
Provisionsteilung – hälftige Käufer- bzw. Verkäuferprovision in Höhe von je 3,57 % inkl. 19 % Umsatzsteuer vom endgültigen Erwerbspreis (fällig für den Käufer bei Vertragsabschluss und nach Eingang der Verkäuferprovision)
Ausstattung
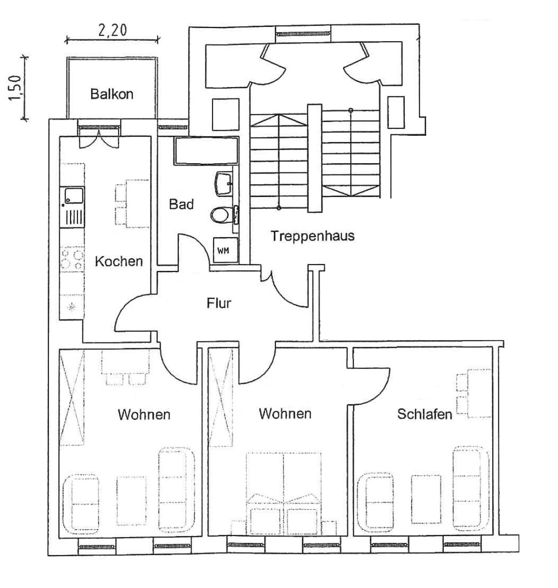
Ansprechende 3-Raumwohnung in beliebter, ruhiger und verkehrsgünstiger Lage.Die 3-Raumwohnung befindet sich im 2.Obergeschoß und verfügt neben hellen Wohnräumen über eine kleine separate Küche mit direktem Balkonzugang, ein Tageslichtbad mit Wanne und Waschmaschinenanschluß sowie einen dazugehörigen Keller.
Im Treppenhaus ist zusätzlich eine Abstellkammer zur Wohnung gehörig.
Aktuell ist die Wohnung vermietet.
Lage
Der Ortsteil Paunsdorf liegt im Osten von Leipzig und ist eine ruhige und grüne Wohngegend.Für den großen und kleinen Einkauf bietet sich das nahegelegene Einkaufszentrum „Paunsdorf-Center“ an.
In überschaubarer Zeit erreichen Sie mit der Straßenbahn auch das Leipziger Zentrum und mit dem Auto direkt die Autobahnverbindung A 14/A 38.
Merkmale
- Abstellraum
- Altbau
- Balkon
- Gartennutzung
- saniert
- Zurzeit vermietet
Adresse
04328 Leipzig / Paunsdorf
Auf Google Maps anzeigen















