Saniertes Mehrfamilienhaus in ruhiger Seitenstraße mit großem grünen Mietergemeinschaftsgarten.
Hinweis zur Courtage:
Provisionsteilung – hälftige Käufer- bzw. Verkäuferprovision in Höhe von je 3,57 % inkl. 19 % Umsatzsteuer vom endgültigen Erwerbspreis (fällig für den Käufer bei Vertragsabschluss und nach Eingang der Verkäuferprovision)
Ausstattung
Sie suchen eine besondere Immobilie mit viel Gestaltungsspielraum in ruhiger Wohnlage?Dann könnte dieses Angebot genau das Richtige für Sie sein!
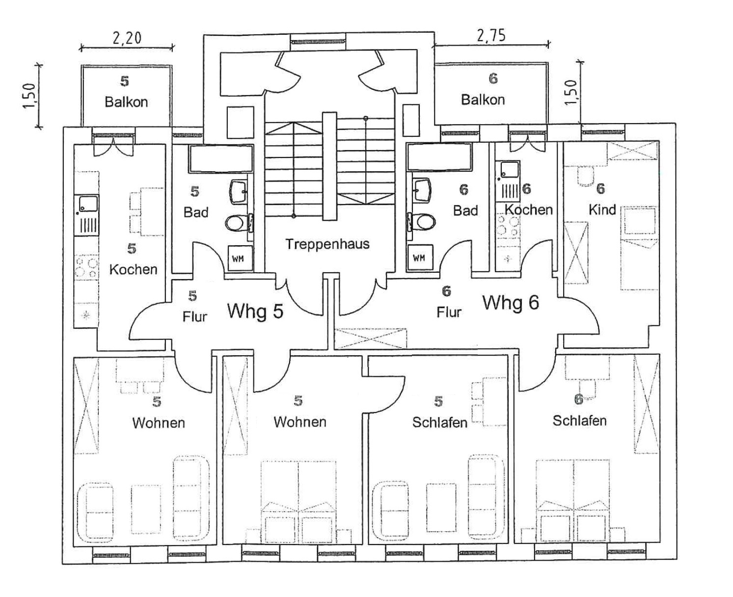
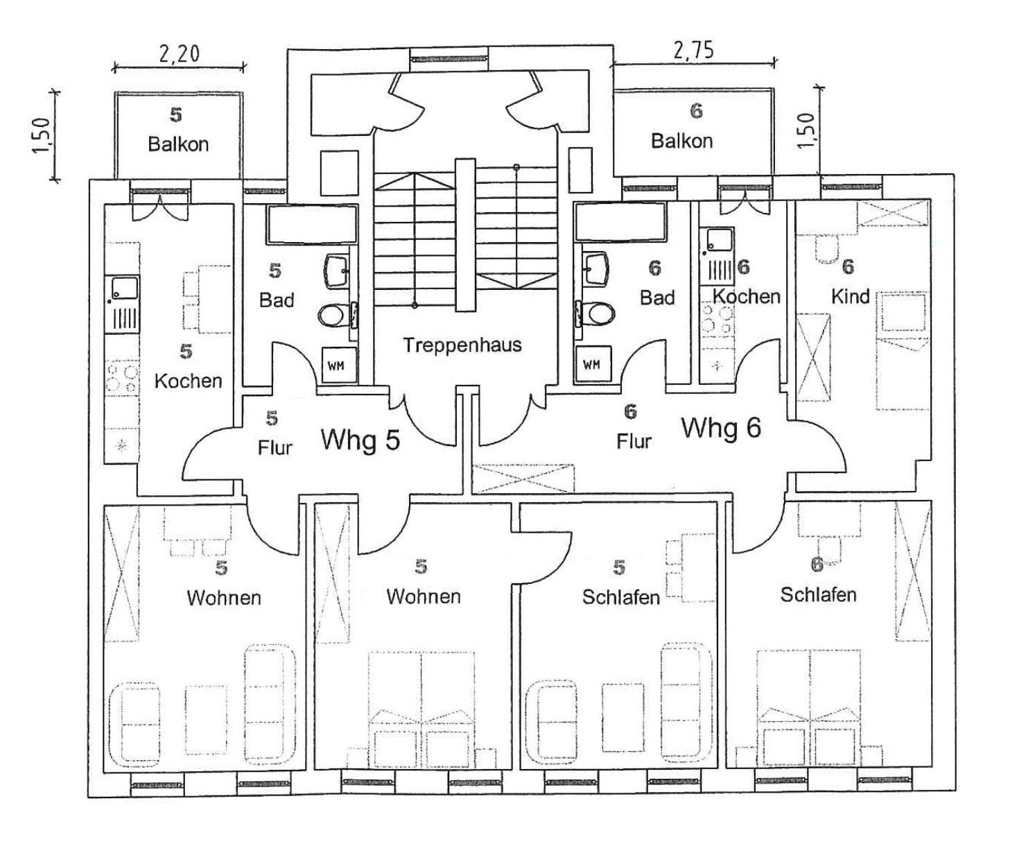
Zum Verkauf stehen zwei nebeneinanderliegende Wohnungen – eine 2-Raum- und eine 3-Raumwohnung – im 2.Obergeschoß eines gepflegten Mehrfamilienhauses in ruhiger, aber verkehrsgünstiger Lage.
Beide Einheiten überzeugen durch helle Wohnräume, jeweils eine separate Küche, sowie Tageslichtbäder mit Badewanne und Waschmaschinenanschluss.
Besonderes Highlight:
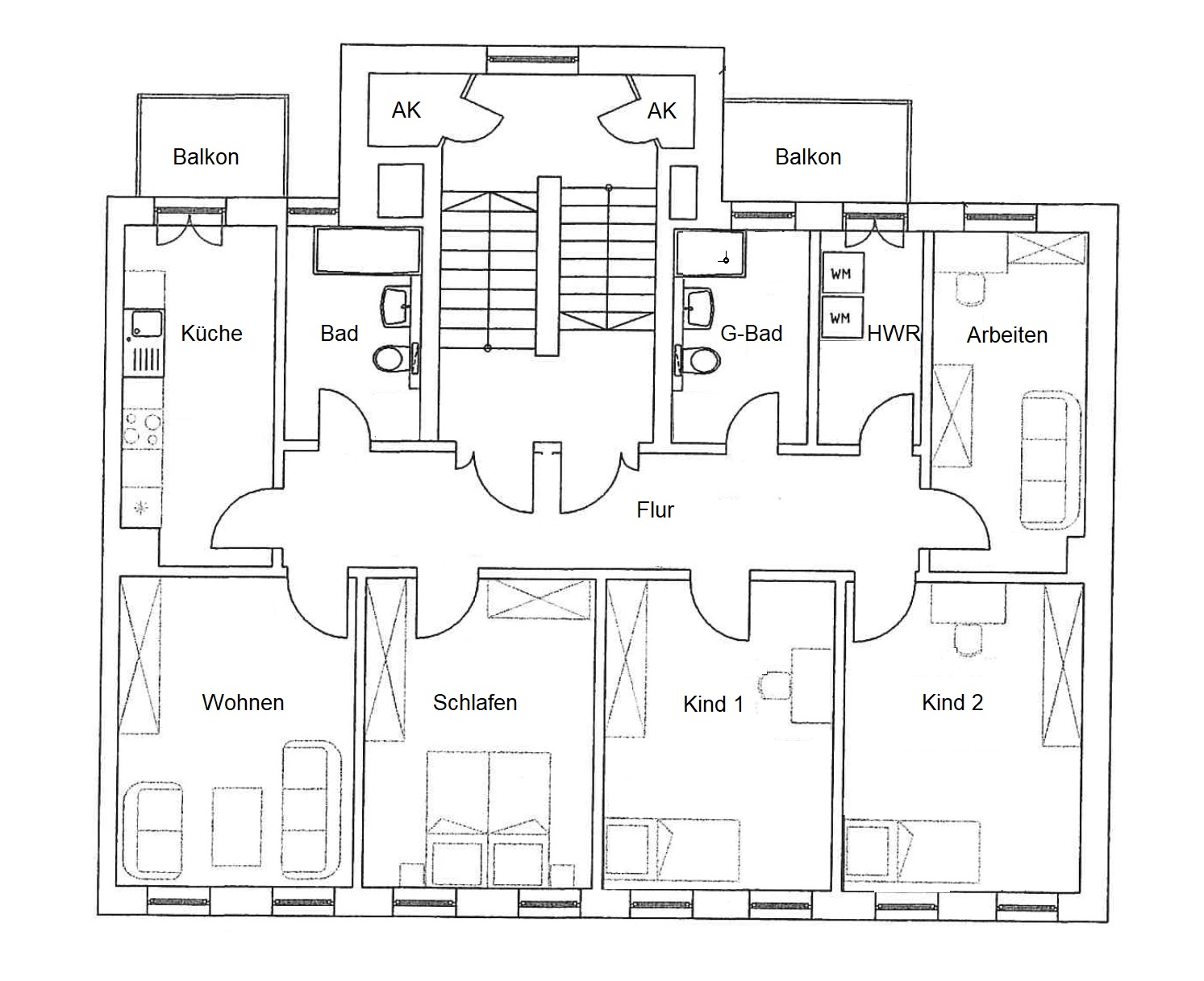
Die Zusammenlegung der beiden Wohnungen zu einer großzügigen 5-Raumwohnung ist baulich denkbar und wurde im Grundriss bereits visuell aufbereitet. Der Zusammenbau könnte über den gemeinschaftlichen Flurbereich erfolgen – ideal für alle, die großzügiges Wohnen oder Wohnen und Arbeiten unter einem Dach realisieren möchten.
Bitte beachten Sie:
Für eine Zusammenlegung ist die Zustimmung der Eigentümergemeinschaft erforderlich. Ebenso müssten mögliche statische Veränderungen baulich geprüft und ggf. eine Anpassung der Teilungserklärung vorgenommen werden.
Das Gebäude selbst befindet sich in einem sehr gepflegten Gesamtzustand.
Die Wohnungen können natürlich auch einzeln erworben werden, sind derzeit vermietet und bieten somit auch kurzfristig attraktive Optionen für Kapitalanleger.
Lage
Der Ortsteil Paunsdorf liegt im Osten von Leipzig und ist eine ruhige und grüne Wohngegend.Für den großen und kleinen Einkauf bietet sich das nahegelegene Einkaufszentrum „Paunsdorf-Center“ an.
In überschaubarer Zeit erreichen Sie mit der Straßenbahn auch das Leipziger Zentrum und mit dem Auto direkt die Autobahnverbindung A 14/A 38.
Merkmale
- Abstellraum
- Altbau
- Balkon
- Gartennutzung
- gepflegt
- Zurzeit vermietet
Adresse
04328 Leipzig / Paunsdorf
Auf Google Maps anzeigen























