Das Objekt wurde im Jahr 1997 als modernes Einkaufszentrum an derselben Stelle errichtet, an der das gleichnamige, alteingesessene Kaufhaus während der letzten Kriegstage zerstört wurde.
Hinter der ansprechenden Fassade verbergen sich drei Einkaufsebenen mit insgesamt 45 Geschäften, verschiedene gastronomische Einrichtungen in der Mall, drei Büroetagen und ein Parkhaus/eine Tiefgarage auf mehreren Ebenen mit insgesamt 347 Stellplätzen.
Die flexiblen Raumaufteilungsmöglichkeiten, die moderne und individuell anpassbare haustechnische Ausstattung, Lastenaufzüge, Rolltreppen und die vielfältigen Raumcharakteristiken ermöglichen eine breite Palette von Nutzungs-möglichkeiten (Büros, Einzelhandel, Gastronomie, Ausstellungen und Veranstaltungen).
Soweit Tiefgaragenstellplätze verfügbar sind, müssen diese jedoch bei einem separaten Parkplatzbetreiber angemietet werden !
Die Mietflächen teilen sich wie folgt auf:
Mietfläche gesamt 21.894 m²
…davon Handel / Gastronomie 7.575 m²
…davon Büro 12.503 m²
…davon Wohnen 998 m²
…davon Lager 818 m²
Ausstattung
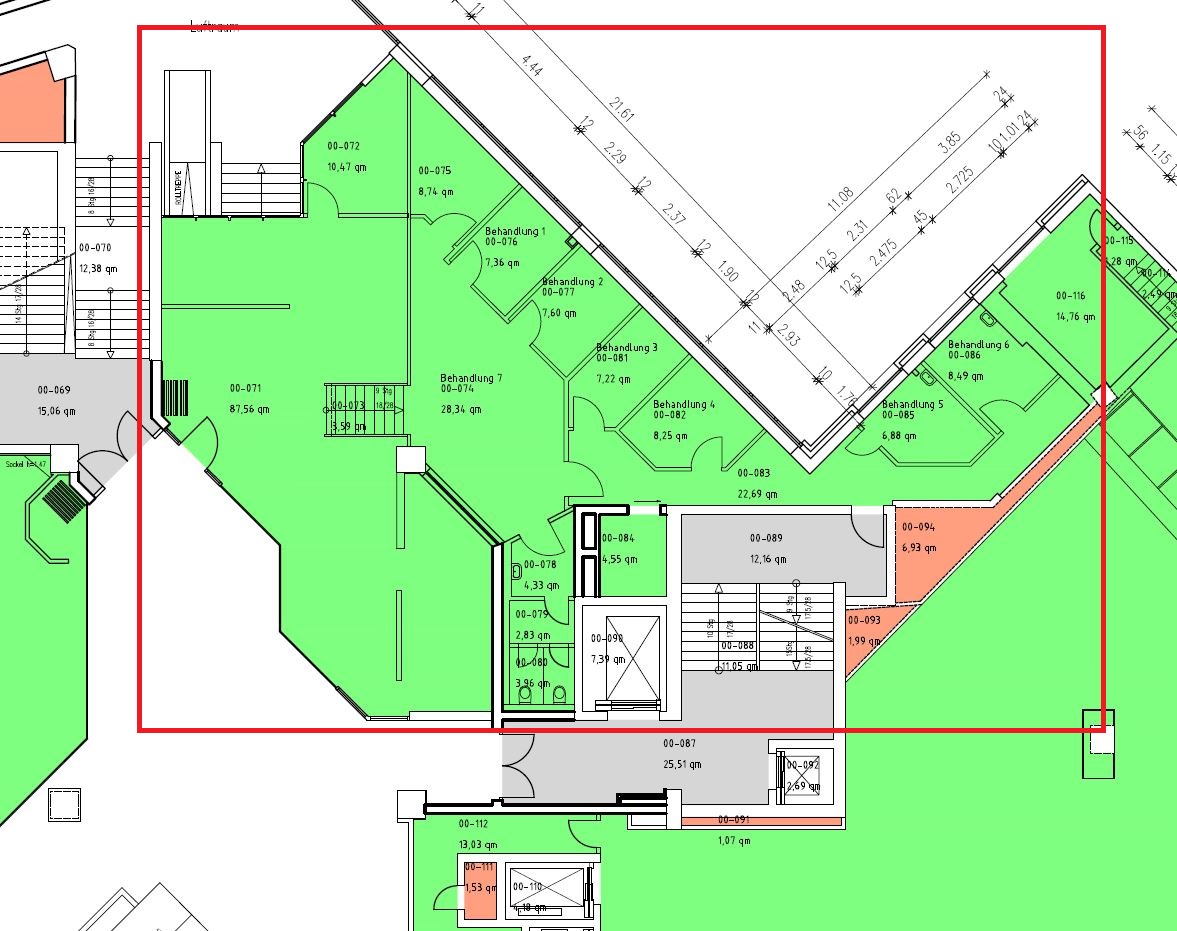
Die Mieteinheit wurde von einem Friseursalon mit Beautyangebot genutzt und ist perfekt für die Nutzungsart ausgestattet. Kleine Kabinen für die Anwendung von Beautybehandlungen sind im oberen Bereich der Einheit verfügbar.Flächenanpassungen und Ausbauten nehmen wir gern in Absprache mit Ihnen vor.
Tiefgaragenstellplätze verfügbar. Diese werden/müssen jedoch bei einem separaten Parkplatzbetreiber angemietet werden !
Lage
Das Ritterhaus, als herausragendes Landmark, befindet sich in bester Lage im Herzen der malerischen Altstadt von Halle, nur wenige Schritte vom pulsierenden Marktplatz und der renommierten Universität Halle entfernt.Diese strategische Positionierung gewährleistet nicht nur eine authentische Einbindung in die Geschichte und Atmosphäre der Stadt, sondern zieht auch täglich rund 18.000 Passanten an.
Die exzellente Erreichbarkeit über das gut ausgebaute öffentliche Verkehrsnetz sowie eine öffentliche Tiefgarage mit etwa 345 Stellplätzen bieten zusätzlichen Komfort für Besucher.
Weiterhin stehen im naheliegenden und fußläufig erreichbaren Parkhaus am Hansering (B+B Parkhaus) auf mehreren Ebenen weitere zahlreiche Stellplätze für Besucher und Gäste zur Verfügung.
Merkmale
- Aufzug
- gewerbliche Nutzung möglich
- neuwertig
- provisionsfrei
- Stellplatz / Garage
Adresse
Leipziger Str. 91, 06108 Halle / Altstadt
Auf Google Maps anzeigen









































 
			 
				 
				 
				 
				 
				 
				 
				 
				