Die Wohnungen befinden sich in einem gepflegten Wohn- und Geschäftshauses in zentraler Lage .
Ausstattung
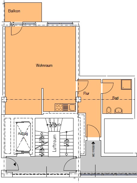
Diese helle 1-Zimmer-Wohnung befindet sich im 1.Obergeschoss des Hinterhauses und ist bequem über den Lift zu erreichen. Der Wohnraum verfügt über einen Balkon und ansprechenden Laminatboden. Die Küche ist offen gestaltes, das Bad hat eine Dusche. Zur Wohnung gehört kein Keller.Lage
Die angebotene Etagenwohnung befindet sich in einer äußerst begehrten Lage im Herzen von Halle, einer lebendigen und historisch bedeutsamen Stadt in Sachsen-Anhalt. Umgeben von einer charmanten Mischung aus kulturellen Attraktionen und modernen Annehmlichkeiten, bietet dieser Stadtteil eine perfekte Balance zwischen städtischem Leben und Erholung. In unmittelbarer Nähe befinden sich eine Vielzahl an gastronomischen Einrichtungen, Einkaufsmöglichkeiten sowie Bildungs- und Gesundheitseinrichtungen. Die exzellente Anbindung an das öffentliche Verkehrsnetz gewährleistet eine schnelle Erreichbarkeit der umliegenden Regionen und erleichtert den Alltag erheblich. Diese Lage ist ideal für Menschen, die das pulsierende Leben der Stadt zu schätzen wissen, ohne auf eine ruhige Wohnatmosphäre verzichten zu müssen.Merkmale
- Aufzug
- Balkon
- Haustiere erlaubt
- neuwertig
- provisionsfrei
Adresse
Barfüßerstraße 17, 06108 Halle / Altstadt
Auf Google Maps anzeigen








