Attraktive und großzügige 2-Raum-DG-Maisonettenwohnung in direkter und repräsentativer Zentrumslage am Altmarkt mit fantastischem Blick auf die Thomaskirche und den Leipziger Markt.
Ausstattung
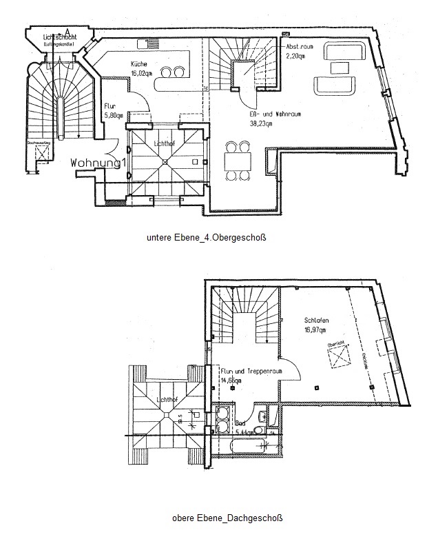
Charmante Maisonette-Wohnung mit modernem Grundriss und Parkettboden.Diese attraktive Wohnung im 4. Obergeschoss überzeugt durch ihre offene Raumgestaltung und eine gelungene Aufteilung auf zwei Ebenen.
Gleich im Eingangsbereich befindet sich auch der Zugang zu einem kleinen GästeWC für Ihre Besucher
In der unteren Wohnebene erwartet Sie ein großzügiger Wohnbereich mit vorgelagerten separaten Küche – ideal für gesellige Abende und ein modernes Wohngefühl.
Das Tageslichtbad, in der oberen Etage ist mit einer Badewanne und Dusche ausgestattet und lädt zum Entspannen ein.
Ein gemütliches Schlafzimmer mit einem automatischen Oberlicht befindet sich direkt daneben.
Der hochwertige Parkettboden verleiht der gesamten Wohnung eine warme und stilvolle Atmosphäre.
Bitte beachten Sie:
Es steht keine fest zugewiesene Parkmöglichkeit direkt am Objekt zur Verfügung !
Bei Bedarf können Stellplätze im angrenzenden Parkhaus separat angefragt werden.
Lage
Das Leipziger Zentrum umfasst den alten Stadtkern und wird komplett vom Innenstadtring umschlossen.Wer hier lebt, der lebt mittendrin. Uneingeschränkte Mobilität ist jederzeit und in jede Richtung möglich.
Es sind zahlreiche Einkaufs-möglichkeiten vorhanden und tägliche Erledigungen können problemlos z.B. auf dem Marktplatz mit frischem Angebot bewältigt werden.
Einen Überblick von Oben verschafft man sich am besten über das City-Hochhaus, auch „Weisheitszahn“ genannt. Noch heute lässt sich im Zentrum das alte Leipzig des Handels, der Messe und des Bürgertums erleben.
Merkmale
- Abstellraum
- DV-Verkabelung
- gepflegt
- provisionsfrei
- Stellplatz / Garage
Adresse
Thomaskirchhof 11, 04109 Leipzig / Zentrum
Auf Google Maps anzeigen



































