Das Listhaus im Leipziger Graphischen Viertel ist ein architektonisches Ensemble mit Charakter. Errichtet im Jahr 1933 und später sorgfältig saniert sowie erweitert, verbindet es den Charme klassischer Büroarchitektur mit klarer, moderner Formensprache. Die markante Fassade aus Glasflächen und Metallkomponenten prägt das Stadtbild und verleiht dem Gebäude eine repräsentative Erscheinung.
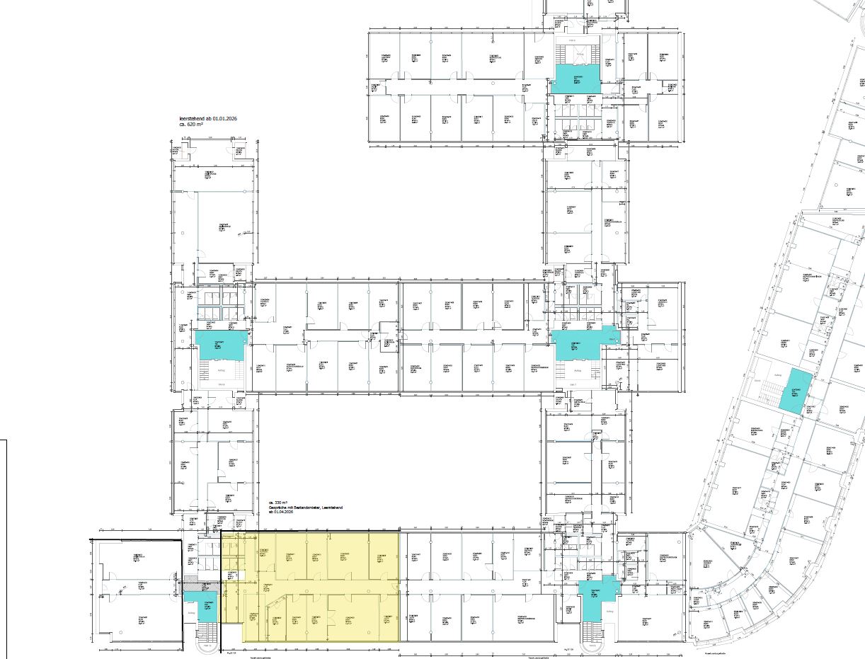
Auf sechs Etagen und rund 38.000 m² bieten großzügige Grundrisse eine Vielzahl an Raumkonzepten. Großzügige Fensterfronten sorgen für lichtdurchflutete Arbeitsbereiche, während großzügige Deckenhöhen ein offenes Raumgefühl schaffen. Der begrünte Innenhof wirkt als ruhiger Gegenpol zur lebhaften Umgebung und steigert die Aufenthaltsqualität.
Die Gebäudestruktur erlaubt flexible Raumaufteilungen, moderne technische Ausstattung und repräsentative Empfangsbereiche. Mit klaren Linien, hochwertigen Materialien und funktionaler Architektur steht das Listhaus für zeitgemäßes Arbeiten in einer traditionsreichen Immobilie mitten in Leipzig.
Ausstattung
– Hochwertiger Bürostandard mit flexiblen Grundrisslösungen – vom Einzel- bis zum Großraumbüro– Raumhöhen zwischen 3,00 und 3,50 Metern für ein großzügiges Raumgefühl
– Hervorragende natürliche Belichtung durch großflächige Fensterfronten
– Außenliegender Sonnenschutz und öffenbare Fenster für ein angenehmes Raumklima
– Doppelböden zur flexiblen technischen Ausstattung
– Moderne Teeküchen und Personenaufzüge in allen Etagen
– Klimatisierung größtenteils vorhanden oder nach Vereinbarung möglich
– Tiefgaragenstellplätze sowie Fahrradstellplätze direkt im Gebäude
Diese Ausstattung schafft ideale Rahmenbedingungen für effizientes, modernes und repräsentatives Arbeiten in zentraler Leipziger Lage.
Lage
Das Listhaus befindet sich in äußerst zentraler Lage am Friedrich-List-Platz, mitten im gefragten Graphischen Viertel von Leipzig. Nur wenige Gehminuten trennen das Objekt vom Leipziger Hauptbahnhof und der Innenstadt – ideale Voraussetzungen für Unternehmen, die Wert auf Sichtbarkeit, kurze Wege und eine urbane Umgebung legen.Die Verkehrsanbindung ist hervorragend: Direkt vor dem Gebäude befindet sich eine Straßenbahnhaltestelle, über die das gesamte Stadtgebiet bequem erreichbar ist. Durch die Nähe zur B2 sowie die schnelle Anbindung an die Autobahnen A14, A38 und A9 ist das Listhaus auch für den Individualverkehr optimal erschlossen. Der Flughafen Leipzig/Halle ist in etwa 20 Fahrminuten erreichbar.
Im Umfeld profitieren Mieter von einer gewachsenen Infrastruktur mit einem breiten gastronomischen Angebot, zahlreichen Dienstleistern und Einkaufsmöglichkeiten. Zusätzlich stehen in der hauseigenen Tiefgarage ausreichend PKW- und Fahrradstellplätze zur Verfügung – ein klarer Pluspunkt für Mitarbeiter, Kunden und Besucher.
Merkmale
- Aufzug
- DV-Verkabelung
- Einbauküche
- gewerbliche Nutzung möglich
- provisionsfrei
- Stellplatz / Garage
Adresse
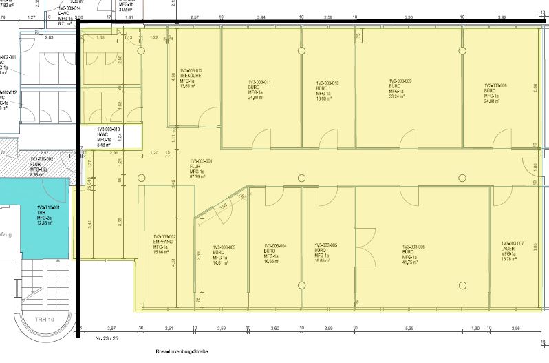
Rosa-Luxemburg-Str. 23, 04103 Leipzig / Zentrum-Ost
Auf Google Maps anzeigen



































