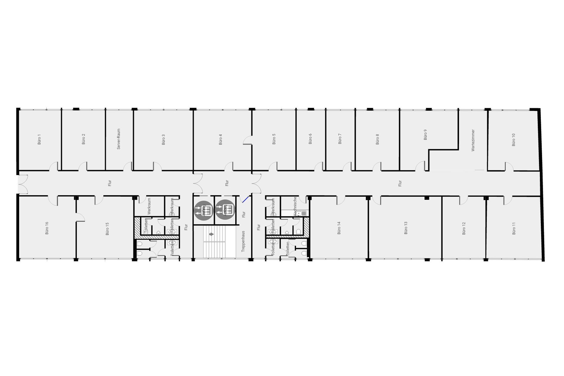
Das moderne Geschäftshaus wurde 1995 in zeitgemäßer Architektur erbaut, befindet sich in zentraler Lage von Leipzig und verfügt über eine hauseigene Tiefgarage. Über zwei Treppenhäuser erschließen sich die 6 Etagen bequem per Aufzug in einem attraktiven Ambiente. Eine barrierearme Erreich- und Nutzbarkeit aller Einheiten ist gewährleistet. In den Obergeschossen angelangt, erwarten Sie moderne Bürolösungen, die sich dank flexibler Trennsysteme an Ihren Flächenbedarf anpassen lassen.
Die Mieteinheiten reichen von ca. 300 m² bis zum kompletten Stockwerk, das etwa 880 m² bietet. Als besonderes Highlight für Ihre Firmenpräsenz ist eine Außenwerbung am Objekt möglich.
Ausstattung
Das moderne Geschäftshaus befindet sich auf einem modernen und attraktiven Ausstattungsniveau• Personenaufzüge
• Hohlraumböden
• großzügige Fensterfronten
• flexible Raumprogramme
• Kundenparkplatz / Tiefgarage
• außenliegender Sonnenschutz
• Außenwerbung
• Alarmgesichert
• Glasfaserverkabelung
Die Mietflächen:
• strapazierfähige Teppichböden und Bodenfliesen
• integrierte Arbeitsplatzbeleuchtung in Abhangdecke
• moderne Trennwandsysteme
• Teeküchen vorhanden
• Raumhöhe ca. 2,90 m
• getrennte Sanitärbereiche
• individuelle Ausstattungswünsche können gegen einen monatlichen Aufpreis berücksichtigt werden
Lage
In dem wohl vielfältigsten Stadtteil Leipzigs – dem Zentrum-Nord – sind die Bewohner so unterschiedlich wie die Baustile des Viertels. Hier finden Sie moderne Hochhausfassaden neben großbürgerlichen Gründerzeitvillen und Gewerbegebieten. Der Standort bildet in Leipzig die Heimat der Bereiche Finanzen und Versicherung wie z.B. der SachsenLB und der Sparkasse Leipzig. Zum Erholen und Entspannen ist fußläufig das Rosental, mit seinem Zoologischen Garten, gelegen. Als markantester Punkt des Viertels gilt der Nordplatz, mit der Michaeliskirche, der den Reiz des Stadtteils am Besten widerspiegelt. Hier erleben Sie Natur in Kombination mit einem Großstadtgefühl.Profitieren Sie von einer zentralen Geschäftsadresse für Ihr Unternehmen – kommen Sie in die Berliner Straße.
Merkmale
- Aufzug
- DV-Verkabelung
- gepflegt
- gewerbliche Nutzung möglich
- provisionsfrei
- Stellplatz / Garage
Adresse
Berliner Straße 13, 04105 Leipzig / Zentrum-Nord
Auf Google Maps anzeigen














