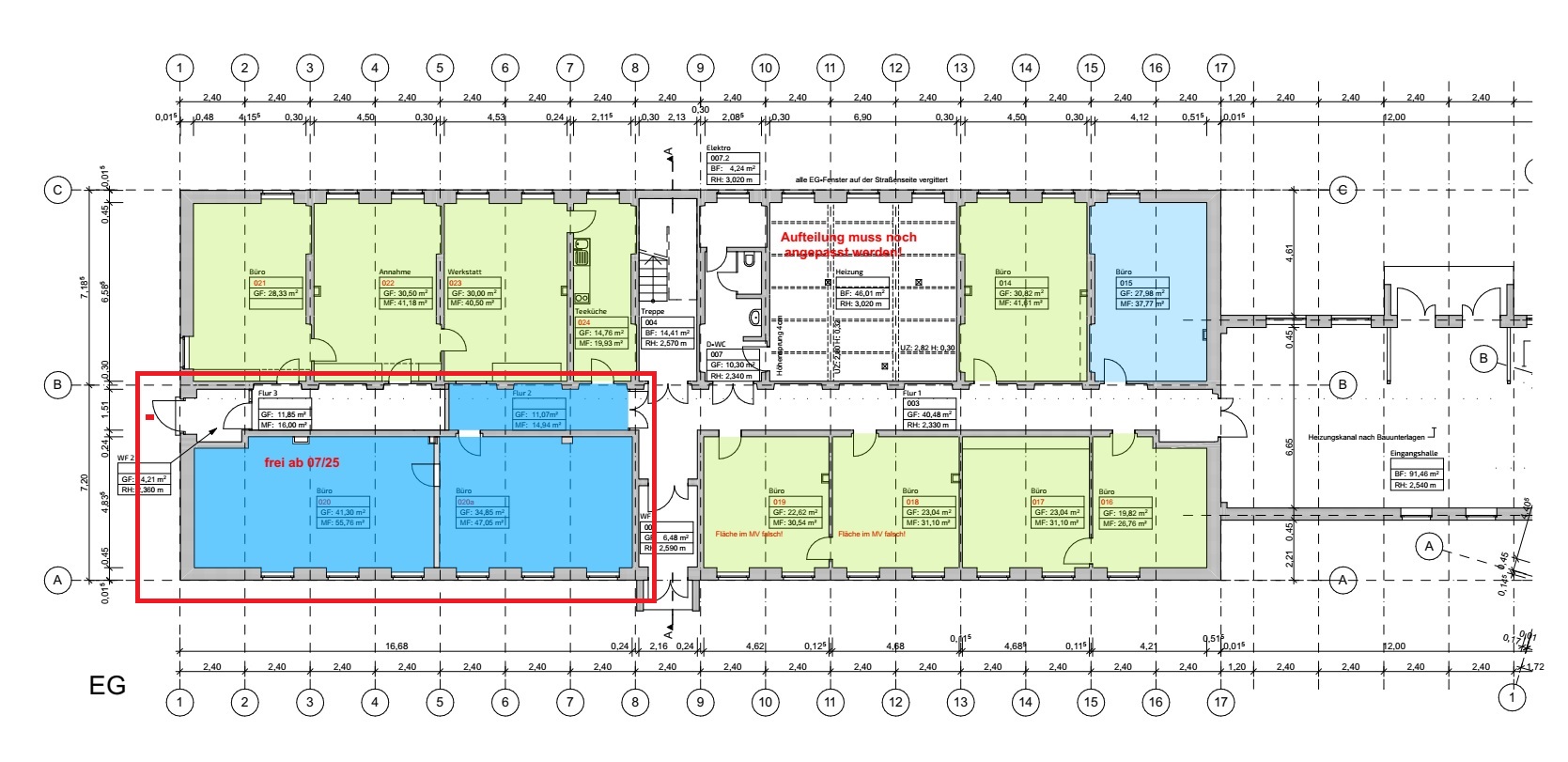
Der STÖTTERITZPARK im Süd-Osten Leipzigs bietet großzügige und flexibel gestaltbare Gewerbe- und Büroflächen von 50 bis 1200 m² zu attraktiven Mietkonditionen.
Der Standort punktet vor allem mit seiner zweckmäßigen Ausstattung und der verkehrsgünstigen Lage.
Ausreichende Parkmöglichkeiten sowie die Haltestellen des Öffentlichen Nahverkehrs befinden sich direkt am Objekt
Ausstattung
Die Flächensind z.T. sofort verfügbar und es kann auch vorhandenes Büromobilar übernommen werden.Unser Team aus Ingenieuren, Architekten und Kaufleuten steht Ihnen bei der Planung und Realisierung Ihrer neuen Wirkungsstätte hilfreich zur Seite.
– helle, klassische Büroflächen
– Anmietung von Teilflächen ab ca. 30 m²
– symphatische Deckenhöhen, welche überschaubare Betriebskosten und ein angenehmes Arbeitsklima möglich
machen
– große Fensterflächen
– Mietflächenberechnungen und Angaben beinhalten immer einen Gemeinflächenanteil, welcher von den Mietern
mit getragen werden muss
Das Objekt ist nicht mit einem Aufzug ausgestattet, so dass die jeweiligen Etagen (außer EG) nur über das Treppenhaus und somit nicht barrierefrei erreichbar sind !!
Lage
Die Bebauung im Umfeld des angebotenen Objektes ist urban geprägt.Aufwändig sanierte historische Wohngebäude verleihen dem Stadtteil Stötteritz seinen besonderen Charme.
Neben Haltestellen für Bus und Tram befindet sich in unmittelbarer Nähe ein Nahversorgungszentrum mit zahlreichen Einkaufsmöglichkeiten und medizinischen Versorgern.
Die parkähnliche Umgebung im Stadtteil Stötteritz beeindruckt mit aufwändigen Wohngebäuden aus der Gründerzeit, verschiedenen Gastronomieangeboten, Einkaufs- und Naherholungsmöglichkeiten.
Merkmale
- Abstellraum
- DV-Verkabelung
- provisionsfrei
- Stellplatz / Garage
Adresse
04299 Leipzig / Stötteritz
Auf Google Maps anzeigen



























