Attraktive 4-Raum-DG-Maisonettenwohnung in direkter und repräsentativer Zentrumslage am Altmarkt mit fantastischem Blick auf die Thomaskirche und den Leipziger Markt.
Wir bitten zu beachten, dass das Objekt über keinen Aufzug und die Wohnung leider über keine Außenfläche (Balkon o.ä.) verfügt.
Ausstattung
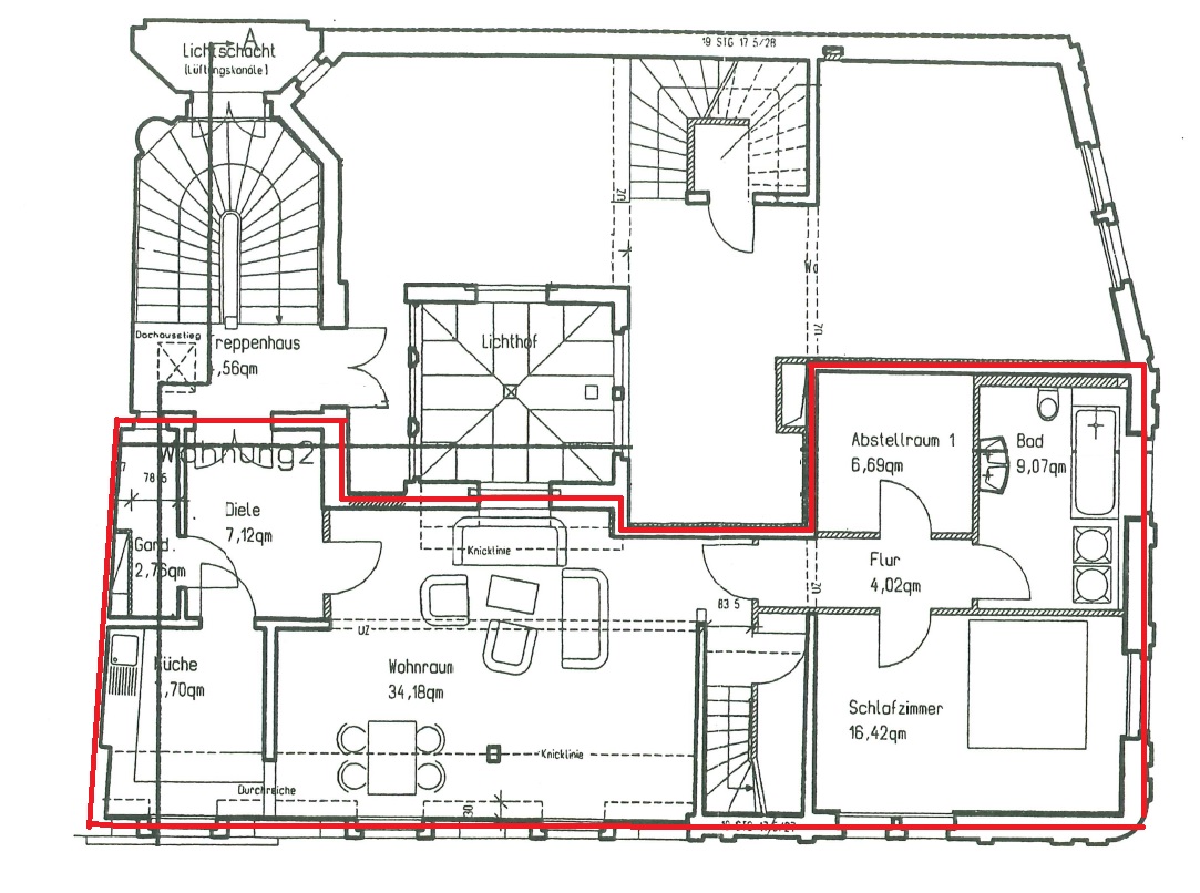
Die großzügige Wohnung verfügt in der unteren Etage über ein GästeWC, eine separate Küche mit Einbauküche, ein großes Wohnzimmer, den Schlafbereich und ein Tageslichtbad mit Wanne.Ein Abstellraum finden Sie in dieser Etage ebenfalls vor.
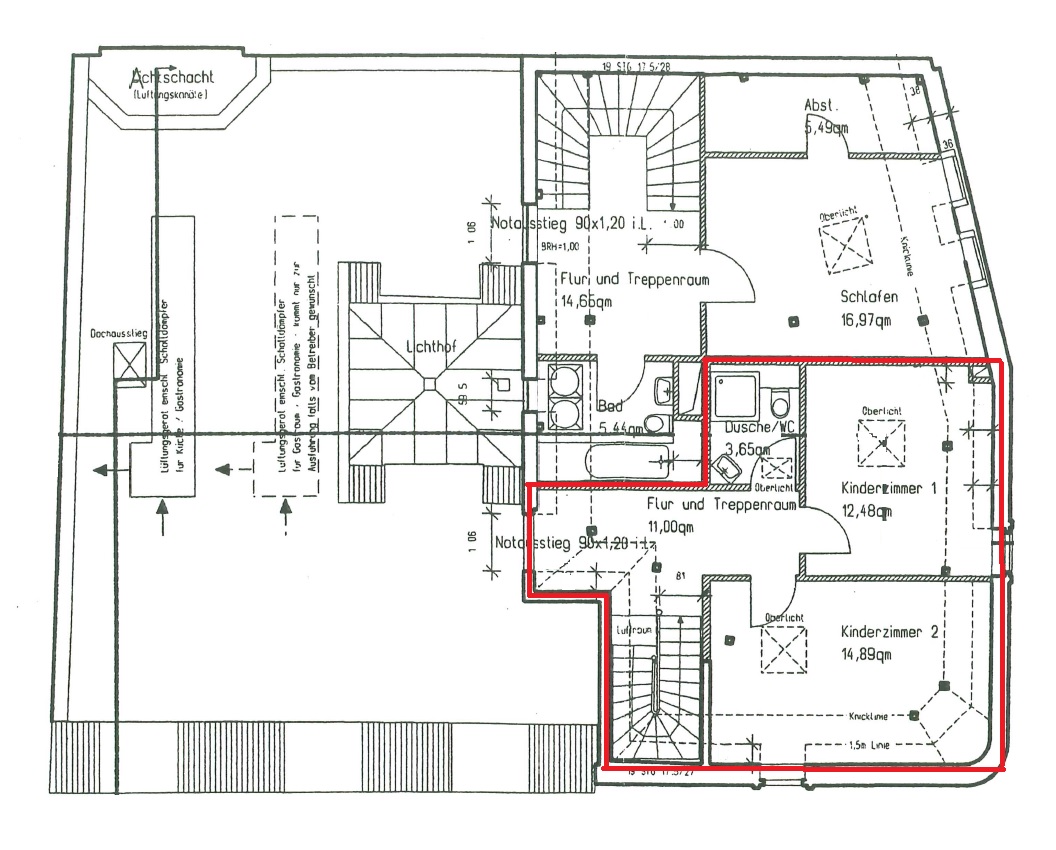
Im oberen Geschoß stehen noch zwei kleine Räume, Kinder-/Arbeits- oder Gästezimmer, und ein Bad mit Dusche bereit.
Die Wohnung ist mit einem ansprechenden Parkettboden ausgestattet.
Parkmöglichkeiten, soweit notwendig, müssten im Parkhaus vor dem Objekt abgefragt werden. Zum Objekt selbst und von Vermieterseite gibt es keine direkte Parkplatzzuweisung.
Lage
Das Leipziger Zentrum umfasst den alten Stadtkern und wird komplett vom Innenstadtring umschlossen.Wer hier lebt, der lebt mittendrin. Uneingeschränkte Mobilität ist jederzeit und in jede Richtung möglich.
Es sind zahlreiche Einkaufs-möglichkeiten vorhanden und tägliche Erledigungen können problemlos z.B. auf dem Marktplatz mit frischem Angebot bewältigt werden.
Einen Überblick von Oben verschafft man sich am besten über das City-Hochhaus, auch „Weisheitszahn“ genannt. Noch heute lässt sich im Zentrum das alte Leipzig des Handels, der Messe und des Bürgertums erleben.
Merkmale
- Abstellraum
- DV-Verkabelung
- Einbauküche
- gepflegt
- provisionsfrei
- Stellplatz / Garage
Adresse
Thomaskirchhof 11, 04109 Leipzig / Zentrum
Auf Google Maps anzeigen

































