Das Bürogebäude in der Nikolaistraße 28-32 in Leipzig verbindet auf einzigartige Weise historische Elemente mit modernem Design. Inmitten der pulsierenden Innenstadt gelegen, bietet das Gebäude eine ideale Basis für kreative und dynamische Unternehmen, die das urbane Flair Leipzigs in vollem Umfang nutzen möchten.
Die großzügigen Büroflächen zeichnen sich durch eine offene Raumgestaltung aus, die viel Flexibilität bei der Nutzung erlaubt. Große Fensterfronten sorgen für ein helles, einladendes Arbeitsumfeld und fluten die Räume mit Tageslicht. Eine moderne Ausstattung, inklusive hochwertiger sanitären Einrichtungen und Internetanschluss, rundet das Angebot ab.
Mit seiner zentralen Lage und der inspirierenden Atmosphäre bietet dieses Bürogebäude eine hervorragende Grundlage für Unternehmen, die im Herzen Leipzigs erfolgreich arbeiten möchten.
Ausstattung
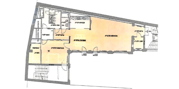
Die Büroflächen bieten eine perfekte Kombination aus historischer Architektur und modernem Design. Die großzügige, offene Raumgestaltung fördert kreative Arbeitsprozesse und lässt Raum für individuelle Gestaltungsmöglichkeiten. Große Fensterfronten durchfluten die Büros mit Tageslicht und schaffen eine helle, einladende Arbeitsatmosphäre.Aktuell stehen im 3. OG und im 4. OG zwei Büroflächen zur Anmietung frei.
Lage
Mitten im Herzen von Leipzig befindet sich dieses Geschäftshaus. Die zentrale Lage garantiert Ihnen unmittelbare Nähe zu sämtlichen Annehmlichkeiten des täglichen Lebens, darunter Restaurants, Cafés, Einkaufspassagen und Banken. Der nahegelegene Markt ist ein beliebter Treffpunkt für Jung und Alt, sowohl für Stadtfeste als auch für Veranstaltungen wie die Classic Open und den Weihnachtsmarkt.Der Leipziger Hauptbahnhof ist in wenigen Gehminuten erreichbar, von dort aus haben Sie perfekten Anschluss an den öffentlichen Nahverkehr. Auch der Flughafen Leipzig-Halle und Autobahnanschlüsse sind in nur etwa 25 Minuten zu erreichen.
Merkmale
- Aufzug
- DV-Verkabelung
- Einbauküche
- gewerbliche Nutzung möglich
- provisionsfrei
- saniert
Adresse
Nikolaistraße 28-32, 04109 Leipzig / Zentrum
Auf Google Maps anzeigen


















































